Nhu cầu tham khảo bản vẽ nhà cấp 4 7×15 chi tiết và chuẩn thiết kế ngày càng tăng để bố trí công năng hợp lý, kết cấu chắc chắn và phối cảnh hài hòa. Thợ Đồng Nai cung cấp các bản vẽ tham khảo cùng tư vấn thiết kế, giúp Anh/Chị dễ dàng lựa chọn phương án phù hợp với nhu cầu, phong cách và ngân sách.

Gợi ý 10+ mẫu bản vẽ nhà cấp 4 7×15 ưa chuộng
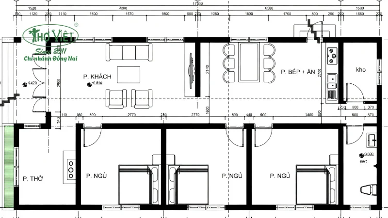
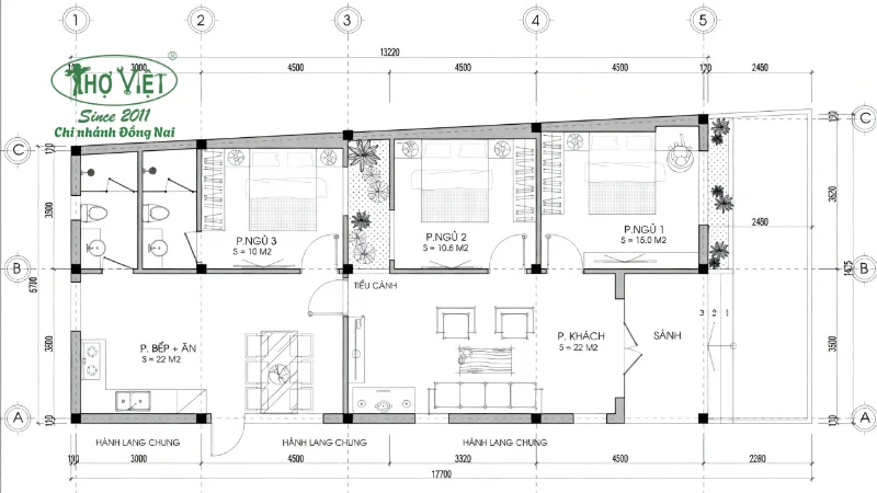
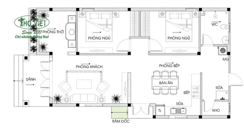
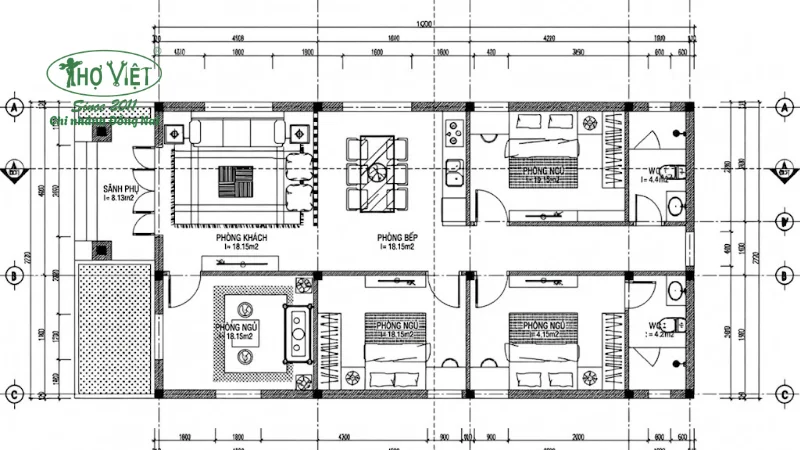
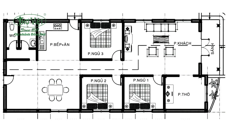
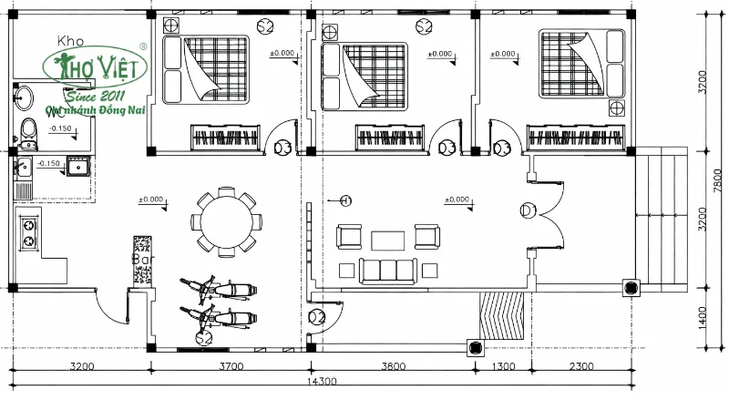
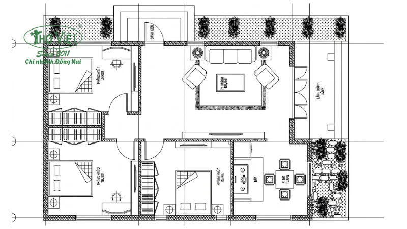
Nhà cấp 4 7×15 là lựa chọn lý tưởng cho nhiều gia đình nhờ diện tích vừa phải, chi phí hợp lý và dễ bố trí công năng. Với thiết kế linh hoạt, mẫu nhà này có thể đáp ứng nhu cầu 2 – 4 phòng ngủ, phòng khách rộng rãi, bếp – ăn tiện nghi, đồng thời tận dụng tối đa ánh sáng tự nhiên và thông gió.
#Tham khảo: Sửa nhà trọn gói
Để Anh/Chị dễ hình dung và tham khảo trước khi thiết kế hoặc thi công, dưới đây là gợi ý các mẫu bản vẽ nhà cấp 4 7×15 với nhiều phong cách và bố trí công năng khác nhau, từ hiện đại, mái Thái, chữ L đến có gác lửng, giúp lựa chọn phương án phù hợp với nhu cầu, phong cách và ngân sách.










Lưu ý khi thiết kế bản vẽ nhà cấp 4 7×15
Việc lên kế hoạch cẩn thận sẽ giúp ngôi nhà vừa đẹp, vừa tiện nghi, vừa đảm bảo kết cấu an toàn. Dưới đây là những yếu tố Anh/Chị nên lưu ý:
Xác định rõ công năng và nhu cầu sử dụng
Trước hết, Anh/Chị cần xác định mục đích từng khu vực. Tầng trệt thường bố trí phòng khách, bếp – ăn, nhà vệ sinh và phòng ngủ nhỏ nếu cần. Với diện tích 7x15m, có thể bố trí 2–3 phòng ngủ, phòng thờ hoặc phòng làm việc tùy nhu cầu. Khi lên kế hoạch, hãy cân nhắc diện tích hợp lý cho từng không gian, tránh phòng quá hẹp gây cảm giác chật chội hoặc quá dài khó tận dụng.
Chú trọng kết cấu chịu lực và an toàn
Kết cấu nhà cấp 4 cần đảm bảo vững chắc cho toàn bộ ngôi nhà, đặc biệt khi bố trí gác lửng hoặc mái Thái. Anh/Chị cần xác định vị trí cột, dầm chính và tường chịu lực, lựa chọn vật liệu bê tông cốt thép chất lượng, tính toán chiều cao hợp lý (thông thường 2,8–3m cho trần tầng trệt) để tránh hiện tượng sàn võng, tường nứt hay xuống cấp sớm.
Tận dụng ánh sáng và thông gió tự nhiên
Một ngôi nhà thiếu ánh sáng và thông gió sẽ gây bí bách và nóng nực. Anh/Chị nên bố trí cửa sổ, giếng trời, sân trước/sân sau hợp lý để ánh sáng tự nhiên chiếu vào và không khí lưu thông tốt. Thiết kế này cũng giúp tiết kiệm điện năng nhờ giảm nhu cầu chiếu sáng và điều hòa.
Chọn phong cách và vật liệu hài hòa
Phong cách thiết kế nên đồng bộ với tổng thể ngôi nhà. Hiện đại nhấn vào hình khối gọn gàng, tối giản; mái Thái tập trung vào thẩm mỹ và độ thoáng; kiểu sân vườn kết hợp cây xanh, hiên ngoài trời và lối đi thông thoáng. Vật liệu sử dụng cho sàn, mái, cửa và lan can cần đồng bộ về màu sắc, chất liệu để vừa bền vừa thẩm mỹ.

Để được tư vấn chi tiết hoặc xem các bản vẽ tham khảo nhà cấp 4 7×15, Anh/Chị có thể liên hệ Thợ Đồng Nai, nơi mang đến giải pháp thiết kế và thi công uy tín, chuyên nghiệp, đảm bảo tiến độ và chất lượng công trình.
