Để sở hữu một ngôi nhà cấp 4 70m² vừa tiện nghi, vừa đúng tiêu chuẩn, Anh/Chị có thể tham khảo bản vẽ chi tiết từ Thợ Đồng Nai giúp hình dung rõ bố trí các phòng, tối ưu không gian và thuận tiện cho thi công.

Cách bố trí không gian nhà cấp 4 70m2 hợp lý
Nhà cấp 4 diện tích 70m² là lựa chọn phổ biến nhờ chi phí hợp lý, dễ thi công và đáp ứng nhu cầu sinh hoạt cơ bản của nhiều gia đình. Dưới đây là gợi ý chi tiết về cách bố trí không gian nhà cấp 4 70m², giúp Anh/Chị dễ hình dung trước khi thiết kế hoặc thi công.
Khu vực tiền sảnh và phòng khách
Phòng khách nên được bố trí ngay gần cửa chính để thuận tiện đón tiếp khách và tận dụng ánh sáng tự nhiên. Nội thất trong phòng cần tối giản, ưu tiên các đồ dùng gọn nhẹ, có tích hợp lưu trữ để tiết kiệm diện tích. Có thể sử dụng kệ tivi hoặc vách ngăn thấp để phân tách khu vực mà không làm không gian bí bách, tạo sự thoáng đãng và tiện nghi cho sinh hoạt chung.
Phòng bếp & ăn
Bếp và phòng ăn nên bố trí gần nhau để thuận tiện cho việc nấu nướng và sinh hoạt gia đình. Nếu muốn tăng cảm giác rộng rãi, có thể thiết kế phòng bếp liên thông với phòng khách. Bố trí bếp theo tam giác bếp (bếp – bồn rửa – tủ lạnh) giúp việc nấu nướng thuận tiện, khoa học và gọn gàng.
Phòng ngủ
Nhà 70m² thường bố trí 2–3 phòng ngủ. Phòng ngủ chính nên đặt ở vị trí yên tĩnh, phía sâu trong nhà, có cửa sổ để đón ánh sáng và gió tự nhiên. Phòng ngủ phụ nên đặt gần khu vực sinh hoạt chung, phù hợp cho trẻ em hoặc khách. Sử dụng nội thất đa năng như giường có ngăn kéo hay tủ âm tường sẽ giúp tiết kiệm diện tích và tối ưu không gian.
Nhà vệ sinh và phòng tắm
Nhà vệ sinh nên được đặt gần phòng ngủ hoặc khu vực bếp để thuận tiện sử dụng. Để tối ưu diện tích, có thể kết hợp phòng tắm và nhà vệ sinh trong cùng một không gian. Đồng thời, bố trí cửa sổ nhỏ hoặc hệ thống thông gió giúp giảm ẩm, tránh mùi và bảo vệ đồ nội thất.
Khoảng thông thoáng và sân sau
Dành một phần diện tích làm sân sau hoặc giếng trời giúp ngôi nhà lấy sáng, thông gió và tạo cảm giác rộng rãi hơn. Khu vực này có thể bố trí tiểu cảnh, bồn cây nhỏ, bàn trà ngoài trời hoặc nơi giặt phơi, vừa tạo mảng xanh, vừa giúp nhà luôn thoáng mát, hạn chế bí bách vào những ngày hè.

Mẫu nhà cấp 4 70m2 thịnh hành
Nhà cấp 4 diện tích 70m² đang là lựa chọn phổ biến của nhiều gia đình nhờ chi phí hợp lý, thi công nhanh và dễ bố trí công năng. Dưới đây là các mẫu nhà cấp 4 70m² thịnh hành, với thiết kế hiện đại, tối ưu diện tích và phù hợp với nhiều phong cách kiến trúc khác nhau, giúp Anh/Chị dễ hình dung và lựa chọn ý tưởng cho ngôi nhà của mình.



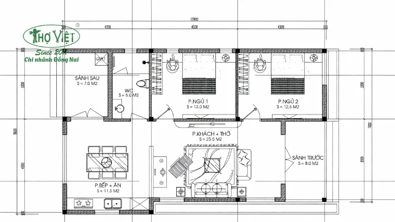
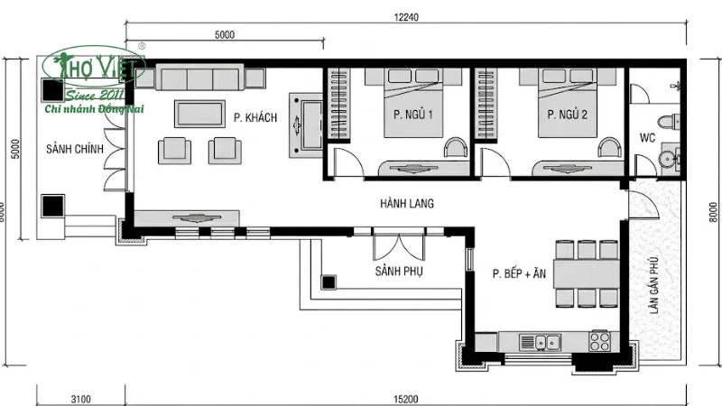
Gợi ý 10+ bản vẽ nhà cấp 4 70m2 thông dụng
Để giúp Anh/Chị dễ hình dung, dưới đây là gợi ý bản vẽ nhà cấp 4 70m² thông dụng, với các phương án bố trí phòng khách, bếp, phòng ngủ, nhà vệ sinh, sân trước và sân sau. Mỗi bản vẽ đều được tối ưu hóa diện tích, đảm bảo không gian sinh hoạt thoải mái, thông thoáng và thuận tiện cho thi công.







Lưu ý khi thiết kế bản vẽ nhà cấp 4 70m2
Khi thiết kế nhà cấp 4 70m², việc lên kế hoạch cẩn thận sẽ giúp ngôi nhà vừa đẹp, vừa tiện nghi, vừa đảm bảo công năng và an toàn. Một số lưu ý quan trọng Anh/Chị cần ghi nhớ:
Xác định rõ công năng và nhu cầu sử dụng
Trước khi bắt tay vào thiết kế, cần xác định mục đích sử dụng của từng khu vực. Phòng khách nên bố trí gần cửa chính, bếp và phòng ăn cần thuận tiện cho sinh hoạt hằng ngày, phòng ngủ nên đảm bảo yên tĩnh và thoáng sáng, nhà vệ sinh đặt ở vị trí hợp lý để thuận tiện sử dụng. Việc xác định công năng rõ ràng giúp tối ưu diện tích, tránh chồng chéo hoặc lãng phí không gian.
Chú trọng kết cấu chịu lực và an toàn
Nhà cấp 4 70m² vẫn cần tính toán kỹ kết cấu tường, cột và dầm chịu lực. Xác định rõ tường chịu lực, vị trí cột và dầm chính, sử dụng vật liệu chất lượng như bê tông cốt thép giúp đảm bảo an toàn lâu dài, tránh sàn võng hoặc nứt tường sau này.
Tận dụng ánh sáng và thông gió tự nhiên
Ánh sáng và thông gió là yếu tố quan trọng giúp nhà diện tích nhỏ như 70m² cảm giác rộng rãi, thoáng mát. Anh/Chị nên bố trí cửa sổ hợp lý ở phòng khách, phòng ngủ và bếp, đồng thời tận dụng giếng trời hoặc sân sau để lấy sáng cho các khu vực sâu bên trong. Ngoài việc giúp nhà sáng và thông thoáng, thiết kế này còn tiết kiệm điện năng nhờ giảm nhu cầu chiếu sáng và sử dụng quạt/máy lạnh.
Chọn phong cách và vật liệu hài hòa
Phong cách thiết kế nên đồng bộ với tổng thể ngôi nhà. Phong cách hiện đại tập trung vào hình khối gọn gàng, tối giản; phong cách tân cổ điển nhấn vào chi tiết trang trí tinh tế; còn kiểu sân vườn hoặc nhiệt đới kết hợp cây xanh và hiên ngoài trời. Vật liệu cho sàn, tường, lan can và nội thất cần đồng bộ về màu sắc và chất liệu, vừa bền vừa thẩm mỹ.
Tính toán chi phí và tiến độ thi công
Trước khi triển khai, nên lập dự toán chi tiết cho toàn bộ công trình, bao gồm chi phí vật tư, nhân công, hoàn thiện nội thất và các hạng mục phụ trợ. Đồng thời, xây dựng bảng tiến độ thi công giúp kiểm soát công việc, hạn chế phát sinh và đảm bảo ngôi nhà được hoàn thiện đúng tiến độ.
#Tham khảo: Dịch vụ sửa nhà trọn gói
Việc thiết kế nhà cấp 4 70m² cần kết hợp giữa công năng, thẩm mỹ và kết cấu an toàn. Để nhận tư vấn chi tiết hoặc tham khảo các bản vẽ thiết kế chuẩn, Anh/Chị có thể liên hệ Thợ Đồng Nai – đơn vị uy tín, chuyên nghiệp, mang đến giải pháp thiết kế và thi công tối ưu, giúp ngôi nhà hoàn thiện đúng tiến độ, vừa đẹp vừa tiện nghi.
