Nhu cầu tham khảo bản vẽ nhà 4×18 chi tiết ngày càng phổ biến nhằm đảm bảo bố trí không gian hợp lý, kết cấu bền vững và tổng thể hài hòa. Với kinh nghiệm thực tế, Thợ Đồng Nai mang đến các bản vẽ tham khảo cùng giải pháp tư vấn thiết kế, giúp Anh/Chị dễ dàng lựa chọn phương án phù hợp với nhu cầu sử dụng và ngân sách.

Gợi ý 10+ bản vẽ nhà 4×18 chi tiết, đầy đủ công năng
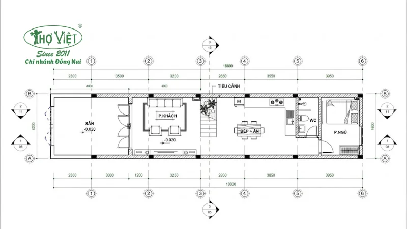
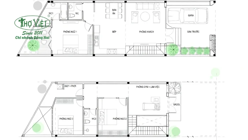
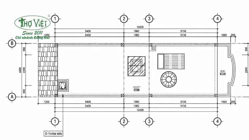
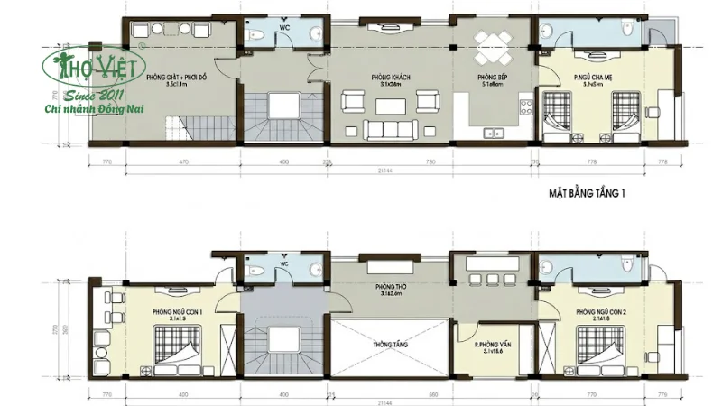
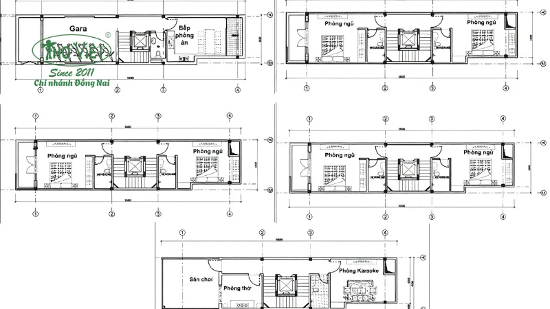
Để Anh/Chị dễ hình dung và tham khảo trước khi lên ý tưởng thiết kế hoặc tiến hành thi công, dưới đây là gợi ý một số mẫu bản vẽ nhà 4x18m với đầy đủ công năng, bao gồm nhiều phong cách kiến trúc và bố trí không gian khác nhau, từ phòng khách, bếp, phòng ngủ đến phòng tắm, sân sau và giếng trời.
Mỗi phương án đều được tối ưu hóa diện tích, mang đến sự tiện nghi, thông thoáng và phù hợp với nhu cầu sinh hoạt của các gia đình hiện đại:










Lưu ý khi thiết kế bản vẽ nhà 4×18
Khi thiết kế nhà 4×18, việc lên kế hoạch chi tiết sẽ giúp ngôi nhà vừa đẹp, vừa tiện nghi, vừa đảm bảo kết cấu an toàn. Dưới đây là những yếu tố Anh/Chị nên lưu ý:
Xác định rõ công năng và nhu cầu sử dụng
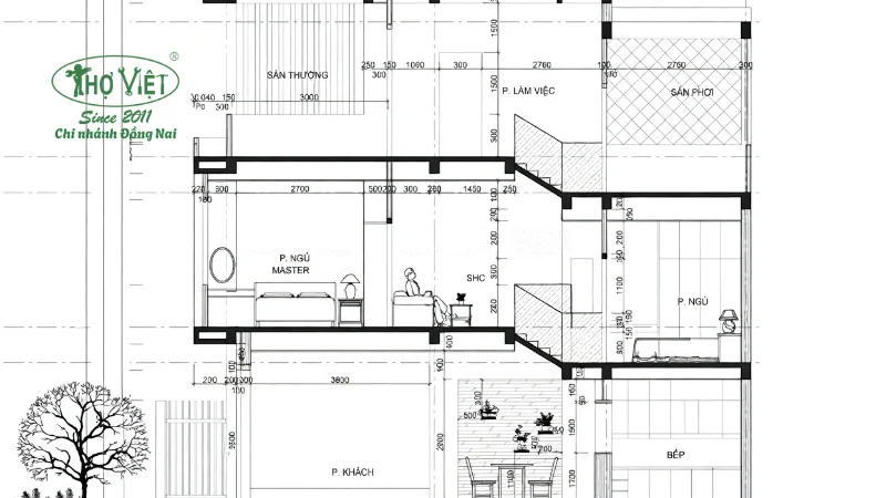
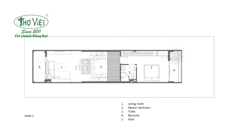
Trước hết, Anh/Chị cần xác định mục đích từng khu vực. Tầng trệt thường bố trí phòng khách, bếp, phòng ăn, nhà vệ sinh và có thể thêm phòng ngủ nhỏ nếu cần. Các phòng ngủ chính nên bố trí ở phía sâu hoặc tầng lửng (nếu có), kết hợp phòng làm việc, phòng học hoặc phòng giải trí. Khi lên kế hoạch, hãy cân nhắc diện tích hợp lý cho từng không gian, tránh bố trí quá chật ở các khu vực sinh hoạt chung và đảm bảo lối đi thông thoáng.
Chú trọng kết cấu chịu lực và an toàn
Nhà 4×18 dài và hẹp cần tính toán kỹ kết cấu tường, cột và dầm chịu lực. Anh/Chị nên xác định vị trí tường chịu lực, cột và dầm chính để đảm bảo an toàn lâu dài, tránh hiện tượng sàn võng hoặc nứt tường sau này. Nếu xây thêm gác lửng hoặc tầng, lựa chọn bê tông cốt thép chất lượng và chiều cao hợp lý (thường 2,2 – 2,5m) là cần thiết.
Chọn phong cách và vật liệu hài hòa
Phong cách thiết kế nên đồng bộ với tổng thể ngôi nhà. Phong cách hiện đại tập trung hình khối gọn gàng, tối giản; tân cổ điển nhấn chi tiết trang trí tinh tế; còn kiểu sân vườn hoặc nhiệt đới kết hợp cây xanh và hiên ngoài trời. Vật liệu cho sàn, cầu thang, lan can và nội thất cần đồng bộ về màu sắc và chất liệu, vừa bền vừa thẩm mỹ.
Tính toán chi phí và tiến độ thi công
Trước khi triển khai, Anh/Chị nên lập dự toán chi tiết cho toàn bộ công trình, bao gồm chi phí vật tư, nhân công, hoàn thiện nội thất và các hạng mục phụ trợ. Đồng thời, xây dựng bảng tiến độ thi công giúp kiểm soát công việc, hạn chế phát sinh và đảm bảo ngôi nhà được hoàn thiện đúng kế hoạch.
#Tham khảo: Dịch vụ sửa nhà

Để nhận tư vấn cụ thể và tham khảo các mẫu thiết kế nhà 4×18, Anh/Chị hãy liên hệ Thợ Đồng Nai – nơi mang đến giải pháp thiết kế thông minh, thi công chất lượng và phù hợp với nhu cầu của gia đình.
