Xu hướng xây dựng với bản vẽ nhà 3 tầng 5x15m ngày càng phổ biến, kéo theo nhu cầu tìm kiếm bản vẽ chi tiết để bố trí không gian hợp lý, đảm bảo kết cấu và tính thẩm mỹ. Thợ Đồng Nai mang đến các bản vẽ tham khảo cùng giải pháp tư vấn thiết kế, giúp Anh/Chị dễ dàng lựa chọn phương án phù hợp với nhu cầu sử dụng và mức đầu tư.

Gợi ý 10+ bản vẽ nhà 3 tầng 5x15m chi tiết đúng tiêu chuẩn
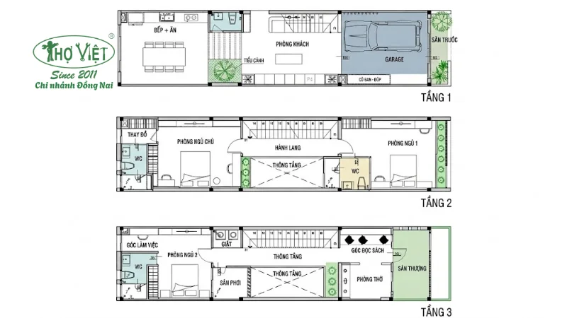
Bản vẽ nhà 3 tầng 5x15m chi tiết đúng tiêu chuẩn dưới đây sẽ giúp Anh/Chị có thêm nhiều ý tưởng bố trí không gian khoa học, tối ưu diện tích và đảm bảo tính thẩm mỹ. Các phương án được thiết kế đầy đủ công năng, phù hợp với nhiều nhu cầu sử dụng khác nhau và dễ dàng điều chỉnh theo phong cách, ngân sách.
Để Anh/Chị dễ hình dung và tham khảo trước khi thiết kế hoặc thi công, dưới đây là các mẫu bản vẽ với nhiều cách bố trí công năng đa dạng:










Lưu ý khi thiết kế bản vẽ nhà 3 tầng 5x15m
Khi thiết kế bản vẽ nhà 3 tầng 5x15m, việc tính toán kỹ lưỡng ngay từ đầu sẽ giúp ngôi nhà không chỉ đẹp mà còn đảm bảo công năng sử dụng và độ bền lâu dài. Dưới đây là những lưu ý quan trọng Anh/Chị nên cân nhắc:
Xác định rõ công năng và nhu cầu sử dụng
Trước hết, Anh/Chị cần xác định số lượng thành viên, thói quen sinh hoạt để phân chia không gian cho hợp lý. Tầng trệt thường bố trí phòng khách, bếp, khu ăn uống và nhà vệ sinh; các tầng trên dành cho phòng ngủ, phòng làm việc hoặc phòng sinh hoạt chung. Nên cân đối diện tích từng phòng để vừa đảm bảo tiện nghi, vừa tránh lãng phí không gian.
Đảm bảo kết cấu vững chắc và phù hợp nền đất
Nhà 3 tầng có tải trọng khá lớn nên cần đặc biệt chú ý đến phần móng, cột, dầm và sàn. Anh/Chị nên khảo sát nền đất trước khi thiết kế để lựa chọn loại móng phù hợp (móng đơn, móng băng…). Đồng thời, việc tính toán kết cấu đúng tiêu chuẩn sẽ giúp hạn chế các vấn đề như nứt tường, lún móng hay võng sàn trong quá trình sử dụng.
Tối ưu ánh sáng và thông gió tự nhiên
Với mặt tiền 5m, việc tận dụng ánh sáng và gió tự nhiên là yếu tố quan trọng giúp không gian luôn thoáng đãng. Anh/Chị có thể bố trí thêm giếng trời, cửa sổ bên hông (nếu có), ban công hoặc khoảng thông tầng. Điều này không chỉ giúp cải thiện môi trường sống mà còn tiết kiệm điện năng đáng kể.
Bố trí hệ thống điện nước khoa học, dễ bảo trì
Hệ thống điện, nước, thoát nước nên được thiết kế đồng bộ ngay từ bản vẽ. Việc đi âm tường gọn gàng, sắp xếp đường ống hợp lý sẽ giúp thi công nhanh chóng và thuận tiện cho việc sửa chữa sau này, tránh tình trạng đục phá gây tốn kém.
#Tham khảo: Sửa nhà giá rẻ

Nếu Anh/Chị cần tư vấn thêm hoặc tham khảo các bản vẽ chi tiết phù hợp thực tế, có thể liên hệ Thợ Đồng Nai để được hỗ trợ giải pháp thiết kế và thi công hiệu quả, đảm bảo tiến độ và chất lượng công trình.
