Móng cọc là phần nền quan trọng giúp nâng đỡ công trình, đảm bảo sự vững chắc và an toàn. Bài viết này của Thợ Đồng Nai sẽ giải thích móng cọc là gì và công dụng của nó trong xây dựng.

Móng cọc là gì?
Móng cọc là loại móng trong xây dựng được thiết kế để truyền tải trọng công trình xuống lớp đất sâu, chắc hơn so với bề mặt. Thay vì chỉ dựa vào nền đất ở mặt bằng, móng cọc sử dụng các cọc (gỗ, bê tông, thép hoặc cọc khoan nhồi) đóng sâu vào đất, giúp công trình vững chắc, hạn chế lún sụt và phù hợp với những khu vực đất yếu hoặc có tải trọng lớn.
Cấu tạo của móng cọc
Móng cọc là phần nền tảng quan trọng giúp công trình vững chắc, đặc biệt là ở những khu vực đất yếu hoặc xây dựng công trình cao tầng. Hiểu rõ cấu tạo của móng cọc sẽ giúp chủ nhà và nhà thầu lựa chọn giải pháp phù hợp, đảm bảo an toàn và bền lâu cho công trình.
Cọc trong móng cọc
Cọc là bộ phận chịu lực chính của móng, được đóng sâu xuống lớp đất chắc để truyền tải trọng từ công trình xuống nền đất ổn định. Có nhiều loại cọc khác nhau, bao gồm cọc bê tông cốt thép phổ biến cho các công trình từ nhà ở đến cao tầng, cọc khoan nhồi thích hợp với nền đất yếu, và cọc gỗ hoặc thép thường dùng cho công trình nhỏ, tạm thời hoặc nơi dễ tiếp cận. Việc lựa chọn loại cọc phù hợp tùy thuộc vào đặc điểm đất nền và tải trọng công trình.
Đài cọc
Đài cọc nằm trên cùng các cọc, có vai trò liên kết chúng lại và phân bổ tải trọng từ công trình xuống các cọc một cách đều đặn. Để đảm bảo hiệu quả, đài cọc cần được thiết kế đúng kích thước và hình dạng, sử dụng bê tông cốt thép chất lượng cao nhằm tăng độ cứng, chịu lực nén tốt và hạn chế nứt trong quá trình thi công.

Bản móng
Trong một số trường hợp, bản móng được sử dụng để kết nối các đài cọc thành một mặt phẳng, giúp công trình ổn định hơn. Bản móng đặc biệt hữu ích cho các công trình nhiều tầng hoặc có tải trọng tập trung lớn, vì nó giúp phân tán lực đều và giảm nguy cơ lún lệch.
Cốt thép và bê tông
Cốt thép và bê tông là hai thành phần phối hợp chặt chẽ trong móng cọc. Cốt thép chịu lực kéo và lực ngang, tăng độ dẻo dai, trong khi bê tông chịu nén, bảo vệ cốt thép và truyền tải lực xuống đất. Sự kết hợp này giúp móng cọc đảm bảo độ vững chắc, hạn chế lún sụt và bền lâu theo thời gian.
#Tham khảo: Sửa nhà trọn gói
Công dụng của móng cọc trong xây dựng
Móng cọc là phần nền tảng quan trọng, quyết định sự vững chắc và bền lâu của công trình. Nếu anh/chị đang có kế hoạch xây nhà hoặc các công trình lớn, việc hiểu rõ công dụng của móng cọc sẽ giúp lựa chọn giải pháp phù hợp, đảm bảo an toàn, tiết kiệm chi phí và tránh các rủi ro về kết cấu sau này.
Đảm bảo công trình vững chắc và ổn định
Móng cọc giúp truyền tải trọng từ toàn bộ công trình xuống lớp đất chắc bên dưới, thay vì chỉ dựa vào nền đất bề mặt vốn yếu hoặc không đồng đều. Nhờ vậy, công trình của anh/chị hạn chế tối đa hiện tượng lún lệch hay sụt lún không đều, ngay cả khi xây nhà cao tầng hoặc công trình có tải trọng lớn. Đây là lý do móng cọc được xem là giải pháp nền tảng bền vững, giúp công trình ổn định theo thời gian.
Giải pháp tối ưu cho nền đất yếu
Ở những khu vực đất yếu, như đất sét, bùn hoặc nền cát lún, móng cọc là lựa chọn hiệu quả. Cọc được đóng sâu vào lớp đất chịu lực tốt, giúp công trình đứng vững mà không bị ảnh hưởng bởi địa chất bề mặt. Điều này mang lại sự an tâm cho anh/chị, hạn chế tình trạng nứt, nghiêng hoặc lún lệch theo thời gian. Chính vì vậy, móng cọc thường được sử dụng cho nhà cao tầng, cầu, cảng hoặc các công trình công nghiệp.
Giúp giảm áp lực lên kết cấu trên và tiết kiệm chi phí
Nhờ móng cọc, tải trọng công trình được phân tán đều xuống các lớp đất sâu, từ đó giảm áp lực trực tiếp lên dầm, tường và nền phía trên. Điều này giúp anh/chị tiết kiệm vật liệu xây dựng cho kết cấu trên, giảm chi phí thi công móng và nhân công. Giải pháp này đặc biệt phù hợp khi xây nhà nhiều tầng hoặc công trình có diện tích lớn, vừa tối ưu ngân sách vừa đảm bảo chất lượng công trình.
Tăng tuổi thọ và đảm bảo an toàn lâu dài
Móng cọc hạn chế nứt móng, lún lệch và các rủi ro kết cấu do nền đất yếu. Khi công trình được nâng đỡ chắc chắn, anh/chị sẽ yên tâm về độ an toàn trong quá trình thi công và tuổi thọ công trình dài lâu, đồng thời giảm chi phí bảo trì và sửa chữa về sau.
Một số loại móng cọc phổ biến
Móng cọc là phần nền tảng quan trọng giúp công trình đứng vững, đặc biệt ở những khu vực đất yếu. Tùy vào địa chất và quy mô công trình, anh/chị có thể lựa chọn loại móng cọc phù hợp để đảm bảo an toàn và tiết kiệm chi phí. Dưới đây là các loại móng cọc phổ biến và đặc điểm của từng loại:
Móng cọc đài thấp
Móng cọc đài thấp là loại móng cọc kết hợp giữa cọc và đài cọc với chiều cao đài thấp, thường chỉ nhô lên trên nền đất một khoảng vừa phải. Loại móng này phù hợp cho nhà cấp 4 hoặc công trình thấp tầng, nơi tải trọng công trình không quá lớn. Móng cọc đài thấp giúp phân tán tải trọng đều xuống cọc, đồng thời giảm chi phí xây dựng và thời gian thi công. Anh/chị có thể chọn loại này nếu công trình có nền đất tương đối ổn định và yêu cầu thi công nhanh.
Móng cọc ép
Móng cọc ép là loại cọc được đóng xuống đất bằng búa hoặc thiết bị ép cơ học. Cọc ép giúp xuyên qua các lớp đất mềm, đạt tới lớp đất chắc bên dưới để nâng đỡ công trình. Loại móng này thích hợp cho nhà phố, nhà dân dụng hoặc nhà nhiều tầng với nền đất yếu nhưng có thể tiếp cận thiết bị thi công. Móng cọc ép nổi bật với ưu điểm thi công nhanh, chịu lực tốt và kiểm soát chất lượng dễ dàng, phù hợp với nhiều loại công trình.
Móng cọc cừ tràm
Móng cọc cừ tràm là loại móng sử dụng cọc gỗ từ thân cây tràm, được đóng xuống đất để nâng đỡ công trình. Loại móng này thường dùng cho nhà cấp 4, nhà sàn hoặc công trình ở vùng đồng bằng, nơi đất mềm và chi phí vật liệu cần tối ưu. Móng cọc cừ tràm giúp anh/chị tiết kiệm chi phí vật liệu, dễ thi công nhưng chỉ thích hợp cho công trình thấp tầng do khả năng chịu lực có hạn.

Móng cọc khoan nhồi
Móng cọc khoan nhồi là loại cọc được khoan trực tiếp vào đất, sau đó đổ bê tông tại chỗ để tạo thành cọc. Loại móng này phù hợp với các công trình lớn, cao tầng hoặc khu vực đất yếu, đất có đá hoặc sét dày. Móng cọc khoan nhồi cho phép điều chỉnh đường kính và chiều dài cọc theo nhu cầu, giúp chịu lực cao, hạn chế rung lắc và đảm bảo độ vững chắc lâu dài. Đây là lựa chọn tối ưu cho anh/chị nếu xây nhà nhiều tầng hoặc công trình công nghiệp.
Phương pháp tính toán móng cọc khi xây nhà
Móc cọc đài thấp
Khi tính toán móng cọc đài thấp, trước tiên xác định độ chôn đài cọc tối thiểu:
h(min) = tan(45 – φ/2) × √(ΣH / γb)
Trong đó:
- φ: góc ma sát trong của đất
- γ: trọng lượng tự nhiên của đất từ đáy móng trở lên
- ΣH: tổng tải trọng ngang tác dụng lên móng
- b: cạnh đáy đài theo phương vuông góc với tổng lực ngang
Tiếp theo, tính số lượng cọc cần bố trí: n = β × N / P
Trong đó:
- n: số lượng cọc
- N: tải trọng tại cao trình đáy móng
- P: sức chịu tải của một cọc
- β: hệ số an toàn (thường từ 1 đến 1,5)
Sau khi xác định số lượng cọc, cần kiểm tra tổng khả năng chịu tải của toàn bộ hệ cọc để đảm bảo: n × P ≥ N
Điều này giúp anh/chị đảm bảo móng đủ khả năng chịu tải và hạn chế lún lệch khi công trình đưa vào sử dụng.
Móng cọc ép
Khi tính toán móng cọc ép, trước tiên anh/chị cần xác định sơ bộ chiều sâu đặt mũi cọc, đường kính cọc và chiều sâu đặt đài cọc để phù hợp với đặc điểm nền đất.
Sức chịu tải cho phép của cọc được xác định theo công thức: Qa = Qk / Kk
Trong đó:
- Qa: sức chịu tải cho phép tính toán của cọc
- Qk: sức chịu tải tiêu chuẩn của cọc
- Kk: hệ số an toàn, thường lấy bằng 1,4
Tiếp theo, sức chịu tải của cọc theo chỉ tiêu cường độ đất nền được tính bằng: Qa = (Qs / FSs) + (Qp / FSp)
Trong đó:
- Qs: sức chịu tải cực hạn do ma sát bên thân cọc
- Qp: sức chịu tải cực hạn do sức chống mũi cọc
- FSs: hệ số an toàn cho thành phần ma sát bên
- FSp: hệ số an toàn cho sức chống mũi cọc
Khi tính tải trọng tác dụng lên móng, có thể xác định theo công thức: Ak = An / 1,15
Trong đó:
- Ak: tải trọng tính toán tác dụng lên móng
- An: tải trọng tiêu chuẩn của công trình
Sau khi có tải trọng và sức chịu tải của từng cọc, số lượng cọc sơ bộ được tính bằng: n = N / Qa
Trong đó:
- n: số lượng cọc cần bố trí
- N: tổng tải trọng công trình truyền xuống móng
- Qa: sức chịu tải cho phép của một cọc
Việc tính đúng số lượng cọc giúp anh/chị đảm bảo công trình ổn định, hạn chế lún lệch và tăng độ bền lâu dài cho phần móng.
Móng cọc cừ tràm
Móng cọc cừ tràm thường được sử dụng cho nhà cấp 4, nhà dân dụng nhỏ hoặc công trình xây trên nền đất yếu, đặc biệt ở khu vực đất ẩm, đất bùn. Đây là giải pháp được nhiều nhà thầu lựa chọn vì chi phí hợp lý và thi công khá đơn giản.
Số lượng cọc cừ tràm thi công trên 1m² thường được tính theo công thức: n = 4000 × (e0 – eyc) / (π × d² × (1 + e0))
Trong đó:
- n: số lượng cọc trên 1m²
- e0: độ rỗng tự nhiên của đất
- eyc: độ rỗng yêu cầu sau xử lý
- d: đường kính cọc
Từ công thức trên, số lượng cọc cừ tràm được lựa chọn tùy theo mức độ yếu của nền đất:
- Đất yếu có độ sệt IL = 0,55 ÷ 0,60, cường độ R0 = 0,7 ÷ 0,9 kg/cm² thì thường đóng 16 cọc/m².
- Đất yếu có độ sệt IL = 0,7 ÷ 0,8, cường độ R0 = 0,5 ÷ 0,7 kg/cm² thì thường đóng 25 cọc/m².
- Đất yếu có độ sệt IL > 0,80, cường độ R0 < 0,5 kg/cm² thì thường đóng 36 cọc/m².
Ngoài việc tính số lượng cọc, anh/chị cũng cần lựa chọn chiều dài cọc phù hợp để cọc cắm sâu vào lớp đất ổn định, giúp tăng khả năng chịu lực và hạn chế lún nền trong quá trình sử dụng công trình.
Móng cọc khoan nhồi
Móng cọc khoan nhồi thường được sử dụng cho công trình có tải trọng lớn, nhà nhiều tầng hoặc khu vực nền đất yếu cần tăng khả năng chịu lực. Loại móng này được thi công bằng cách khoan tạo lỗ trong đất, đặt cốt thép và đổ bê tông trực tiếp tại chỗ, giúp cọc bám chắc vào nền đất sâu.
Trước khi tính toán, cần xác định vật liệu thi công cọc. Ví dụ với bê tông cọc:
Bê tông cọc B25: Rb = 145 kg/cm²; Rbt = 10,5 kg/cm²
Trong đó:
- Rb là cường độ chịu nén của bê tông
- Rbt là cường độ chịu kéo của bê tông
Sức chịu tải của cọc được tính theo công thức: Pv = (m1 × m2 × Rb × Ab) + (Rs × As)
Trong đó:
- Pv: sức chịu tải của cọc
- m1, m2: hệ số điều kiện làm việc
- Rb: cường độ chịu nén của bê tông
- Ab: diện tích tiết diện bê tông
- Rs: cường độ chịu lực của thép
- As: diện tích cốt thép chịu lực
Tiếp theo, sức chịu tải theo đất nền được xác định bằng công thức: Qa = (Qs / FSs) + (Qp / FSp)
Trong đó:
- Qs: sức chịu tải cực hạn do ma sát bên thân cọc
- Qp: sức chịu tải cực hạn do sức chống mũi cọc
- FSs: hệ số an toàn cho thành phần ma sát bên
- FSp: hệ số an toàn cho sức chống mũi cọc
Sau khi tính được sức chịu tải của từng cọc, số lượng cọc cần bố trí sẽ được xác định dựa trên tổng tải trọng công trình để đảm bảo nền móng ổn định, hạn chế lún lệch và tăng tuổi thọ công trình.
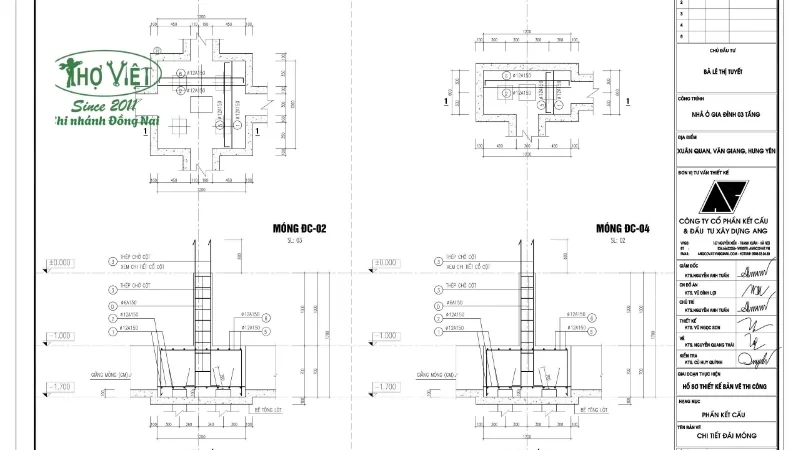
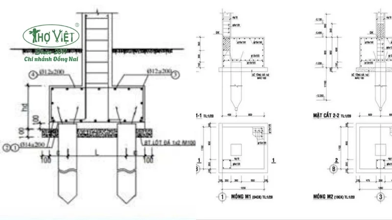
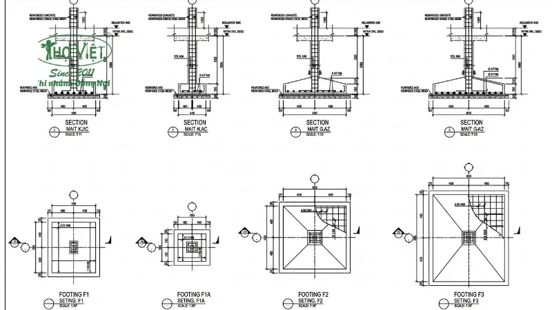
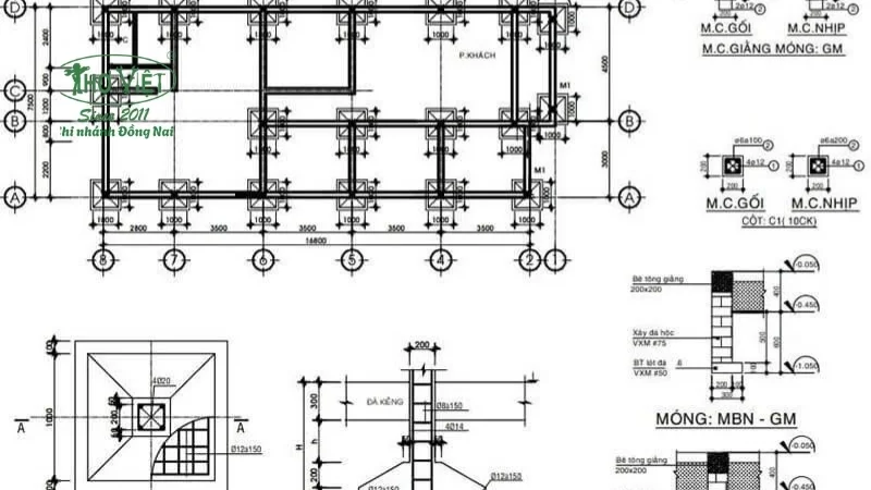
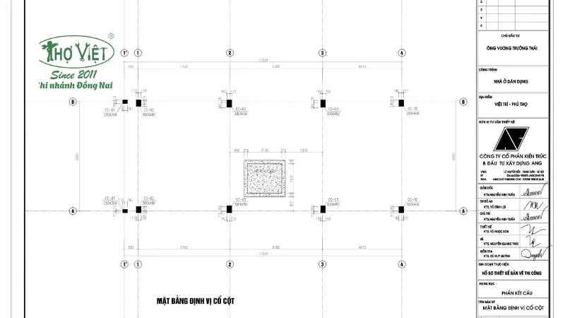
Bản vẽ móng cọc hiện đại nhất hiện nay
Việc tham khảo bản vẽ đúng kỹ thuật sẽ giúp anh/chị dễ hình dung phương án thi công, hạn chế sai sót và đảm bảo công trình bền vững lâu dài:










Đơn vị thi công móng cọc uy tín
Dịch vụ thi công móng cọc của Thợ Đồng Nai mang đến giải pháp nền móng vững chắc cho nhà ở, công trình dân dụng và các hạng mục xây dựng cần xử lý nền đất yếu. Đội ngũ thợ có kinh nghiệm thực tế trong thi công móng cọc giúp công trình đảm bảo độ ổn định, hạn chế lún nứt và phù hợp với từng điều kiện địa chất cụ thể.

Thợ Đồng Nai hỗ trợ đầy đủ từ khảo sát hiện trạng nền đất, tư vấn lựa chọn loại móng phù hợp đến thi công đúng kỹ thuật, tính toán tải trọng cẩn thận và kiểm soát chặt chẽ từng công đoạn để đảm bảo chất lượng công trình.
Với phạm vi phục vụ tại Đồng Nai và các khu vực lân cận, Thợ Đồng Nai mang đến giải pháp thi công móng cọc an toàn, đúng tiến độ và giúp anh/chị yên tâm hơn trong quá trình xây dựng nhà ở hoặc công trình dân dụng.
Nếu anh/chị đang cần tư vấn hoặc thi công móng cọc cho nhà ở, công trình dân dụng, Thợ Đồng Nai sẵn sàng hỗ trợ khảo sát thực tế, đề xuất phương án phù hợp và thi công đúng kỹ thuật, đảm bảo tiến độ cũng như chất lượng công trình.
