Top 10+ bản vẽ cad nhà 2 tầng 7x12m chi tiết

Nhà 2 tầng kích thước 7x12m là lựa chọn phổ biến nhờ tận dụng tối đa diện tích và bố trí công năng hợp lý. Nhu cầu tham khảo các bản vẽ CAD chi tiết để dễ dàng hình dung thiết kế và thi công ngày càng cao. Thợ Đồng Nai cung cấp các mẫu bản vẽ CAD nhà 2 tầng 7x12m chi tiết cùng tư vấn thiết kế, giúp Anh/Chị lựa chọn phương án phù hợp với nhu cầu và phong cách riêng.

Phối cảnh kiến trúc cho bản vẽ cad nhà 2 tầng 7x12m

Nhà 2 tầng 7x12m thường thiết kế theo phong cách hiện đại, tối ưu diện tích 7m mặt tiền, với khối nhà vuông vức, ban công rộng rãi và mái bằng hoặc mái lệch nhẹ. Màu sắc thường ưu tiên tông sáng như trắng, xám hoặc be, kết hợp kính cường lực cho cửa sổ và lan can, tạo cảm giác thông thoáng, hài hòa với thiên nhiên.

bản vẽ cad nhà 2 tầng 7x12m chi tiết

Các đặc điểm phối cảnh nổi bật:

  • Phong cách hiện đại: Chú trọng vào các khối hình học rõ ràng, đường nét thẳng, hạn chế chi tiết rườm rà, tập trung vào ánh sáng và không gian mở.
  • Mặt tiền 7m: Cho phép bố trí sảnh chính rộng, gara hoặc khu để xe bên cạnh, đồng thời tạo khoảng sân nhỏ trước nhà để trồng cây cảnh.
  • Vật liệu sử dụng: Kết hợp gạch ốp trang trí ở tầng trệt, đá nhân tạo hoặc lam gỗ tầng 2, cùng kính cường lực giúp mặt tiền vừa hiện đại vừa sang trọng.
  • Không gian xanh: Ban công, sân thượng có thể bố trí tiểu cảnh, bồn hoa hoặc chậu cây, vừa tạo điểm nhấn thẩm mỹ vừa giúp môi trường sống thoáng mát, gần gũi thiên nhiên.

#Tham khảo: Sửa nhà trọn gói

Gợi ý bản vẽ cad nhà 2 tầng 7x12m

Thợ Đồng Nai cung cấp các mẫu bản vẽ CAD tham khảo cùng tư vấn thiết kế, giúp Anh/Chị dễ dàng lựa chọn phương án phù hợp với nhu cầu, phong cách và ngân sách:

bản vẽ cad nhà 2 tầng 7x12m chi tiết
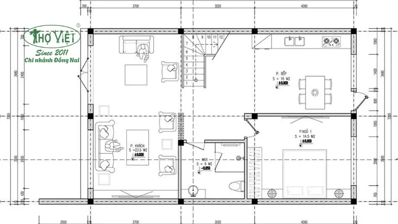
Mẫu 1
bản vẽ cad nhà 2 tầng 7x12m chi tiết
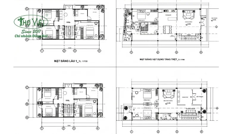
Mẫu 2
bản vẽ cad nhà 2 tầng 7x12m chi tiết
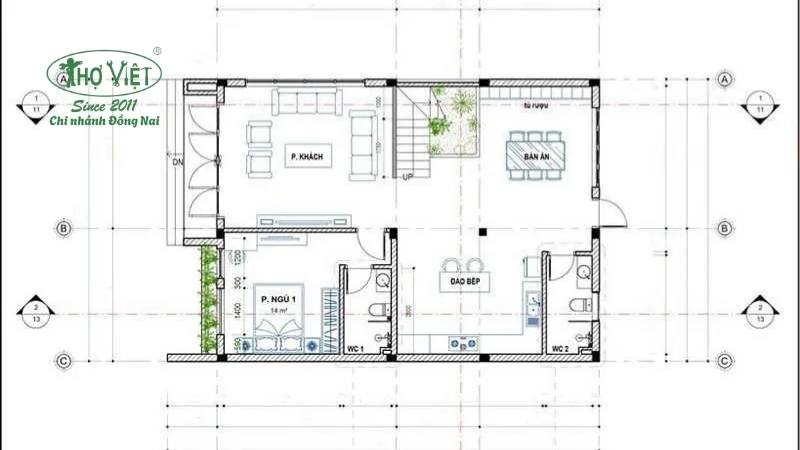
Mẫu 3
bản vẽ cad nhà 2 tầng 7x12m chi tiết
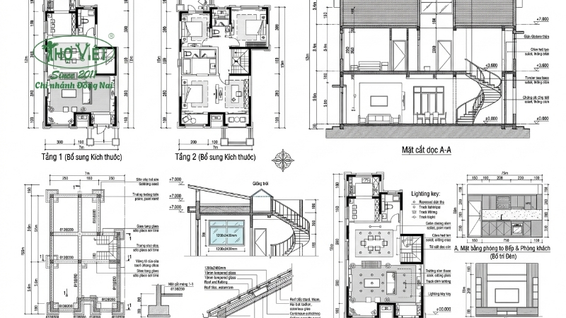
Mẫu 4
bản vẽ cad nhà 2 tầng 7x12m chi tiết
Mẫu 5
bản vẽ cad nhà 2 tầng 7x12m
Mẫu 6
bản vẽ cad nhà 2 tầng 7x12m
Mẫu 7
bản vẽ cad nhà 2 tầng 7x12m chi tiết
Mẫu 8

Trên đây là Top 10+ bản vẽ CAD nhà 2 tầng 7x12m chi tiết, giúp Anh/Chị tham khảo ý tưởng thiết kế, bố trí công năng và phối cảnh kiến trúc hợp lý. Nếu cần thi công hoặc tư vấn thêm, Anh/Chị có thể liên hệ Thợ Đồng Nai, đơn vị uy tín, giàu kinh nghiệm, đảm bảo chất lượng và tiến độ công trình.

Leave a Reply

Your email address will not be published. Required fields are marked *