Tầng hầm nhà phố là giải pháp giúp tăng diện tích sử dụng và tối ưu không gian cho nhà ở đô thị. Tuy nhiên, khi thi công, Anh/Chị cần nắm rõ một số quy định kỹ thuật để đảm bảo an toàn và phù hợp với thực tế xây dựng. Trong bài viết này, Thợ Đồng Nai sẽ cùng Anh/Chị tìm hiểu một số quy định về tầng hầm nhà phố trong xây dựng.

Tầng hầm là gì?
Tầng hầm là phần không gian của ngôi nhà được xây dựng thấp hơn mặt đất tự nhiên hoặc cốt vỉa hè, thường nằm dưới tầng trệt và được sử dụng để để xe, làm kho chứa đồ, phòng kỹ thuật hoặc bố trí thêm không gian sinh hoạt tùy nhu cầu.
Đối với nhà phố, tầng hầm giúp tận dụng diện tích hiệu quả, đặc biệt ở khu vực đô thị có mặt bằng hạn chế. Khi thiết kế tầng hầm, Anh/Chị cần tính toán kỹ chiều sâu, độ dốc lối xuống, khả năng thoát nước và thông gió để đảm bảo sử dụng an toàn, thuận tiện.
#Tham khảo: Dịch vụ sửa nhà
Hiểu đúng theo góc nhìn kỹ thuật
Xét theo góc nhìn kỹ thuật, tầng hầm không chỉ là phần không gian nằm dưới mặt đất mà còn là khu vực chịu áp lực lớn từ đất, nước ngầm và tải trọng của toàn bộ công trình phía trên. Vì vậy, khi thi công tầng hầm, Anh/Chị cần đặc biệt chú ý đến các yếu tố như nền móng, chống thấm, thoát nước, thông gió và độ an toàn của kết cấu để tránh phát sinh sự cố trong quá trình sử dụng.

Các yếu tố kỹ thuật quan trọng thường bao gồm:
- Khảo sát địa chất và mực nước ngầm trước khi xây dựng để xác định khả năng chịu lực của nền đất và lựa chọn giải pháp móng phù hợp.
- Thi công chống thấm kỹ cho đáy và vách hầm nhằm hạn chế thấm ngược, nứt chân tường hoặc ẩm mốc lâu dài.
- Kết cấu tường và sàn tầng hầm cần đủ độ dày, sử dụng bê tông cốt thép để chịu áp lực đất và nước xung quanh.
- Bố trí hệ thống thông gió và chiếu sáng phù hợp để không gian tầng hầm luôn thông thoáng, đặc biệt nếu dùng làm nơi để xe.
- Thiết kế hố thu nước và bơm thoát nước vì tầng hầm nằm thấp hơn cốt thoát nước tự nhiên.
- Đường dốc xuống hầm cần có độ nghiêng hợp lý, thường trong khoảng an toàn để xe di chuyển thuận tiện và hạn chế trơn trượt.
Quy định chuẩn về tầng hầm nhà phố
Khi xây dựng tầng hầm nhà phố, Anh/Chị cần tuân thủ một số quy định kỹ thuật cơ bản để đảm bảo an toàn cho công trình, thuận tiện khi sử dụng và phù hợp với thực tế đô thị. Các thông số này thường được tính toán ngay từ giai đoạn thiết kế để tránh ảnh hưởng đến kết cấu chung của ngôi nhà.
- Chiều cao tầng hầm thường tối thiểu từ 2,2 m để đáp ứng nhu cầu để xe hoặc bố trí không gian sử dụng bên dưới.
- Chiều sâu tầng hầm phổ biến khoảng 2,8 m đến 3,2 m tính từ cốt nền tầng trệt xuống đáy hầm, tùy theo nhu cầu sử dụng và giải pháp móng.
- Độ dốc lối xuống tầng hầm nên nằm trong khoảng 12% đến 15%, trường hợp tối đa không nên vượt quá 20% để xe lên xuống an toàn.
- Chiều rộng ram dốc thường tối thiểu 3 m nếu có ô tô ra vào, giúp phương tiện di chuyển thuận tiện hơn.
- Khoảng cách từ miệng dốc đến ranh lộ giới cần chừa ít nhất 3 m nhằm tạo khoảng đệm an toàn trước khi xe ra đường.

- Hệ thống thoát nước tầng hầm bắt buộc phải có hố thu nước và bơm thoát nước vì tầng hầm nằm thấp hơn hệ thống thoát nước tự nhiên.
- Thông gió tầng hầm cần được bố trí bằng ô thoáng hoặc quạt hút cưỡng bức để đảm bảo không khí lưu thông, đặc biệt khi sử dụng làm nơi để xe.
Độ dốc tầng hầm nhà phố là bao nhiêu phù hợp?
Độ dốc lối xuống tầng hầm nhà phố thường được thiết kế trong khoảng 12% đến 15% để xe máy và ô tô di chuyển thuận tiện, an toàn trong quá trình lên xuống. Với mức này, cứ 1 m chiều sâu tầng hầm thì chiều dài dốc nên bố trí khoảng 6,5 m đến 8 m để giảm độ gắt của ram dốc.
Trong một số trường hợp diện tích hạn chế, độ dốc có thể tăng lên nhưng không nên vượt quá 20%, vì nếu dốc quá lớn sẽ gây khó khăn khi di chuyển, đặc biệt vào mùa mưa hoặc khi xe ra vào thường xuyên. Ngoài ra, bề mặt ram dốc cũng nên tạo nhám và có rãnh thoát nước để hạn chế trơn trượt trong quá trình sử dụng.
Chi phí dự kiến cho tầng hầm nhà phố
Chi phí xây tầng hầm nhà phố thường cao hơn phần xây dựng thông thường do phải xử lý thêm phần đào đất, chống thấm, gia cố vách và hệ thống thoát nước. Mức chi phí phổ biến hiện nay thường dao động khoảng 4 triệu đến 8 triệu đồng/m², tùy vào độ sâu tầng hầm, diện tích xây dựng và điều kiện nền đất thực tế. Với những công trình có nền đất yếu hoặc tầng hầm sâu, chi phí có thể tăng thêm đáng kể. Nếu Anh/Chị muốn biết chính xác mức đầu tư phù hợp với công trình của mình, nên liên hệ Thợ Đồng Nai để được khảo sát và báo giá cụ thể.
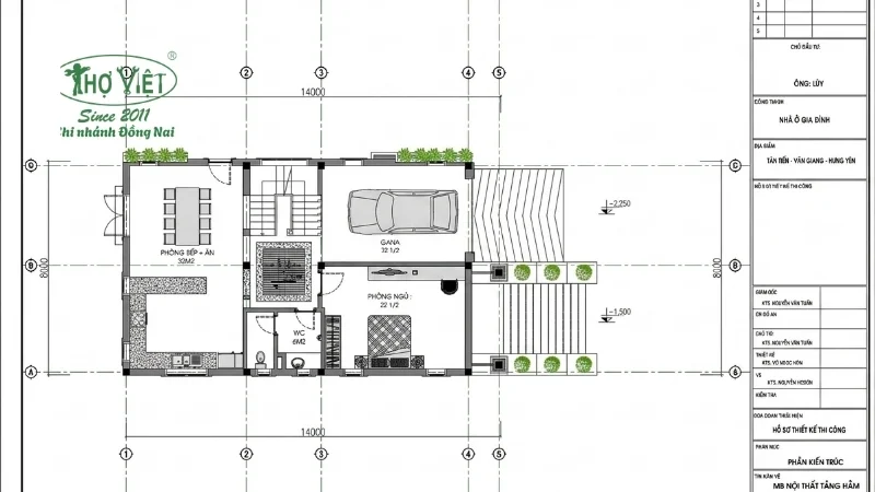
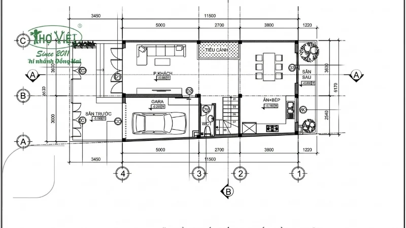
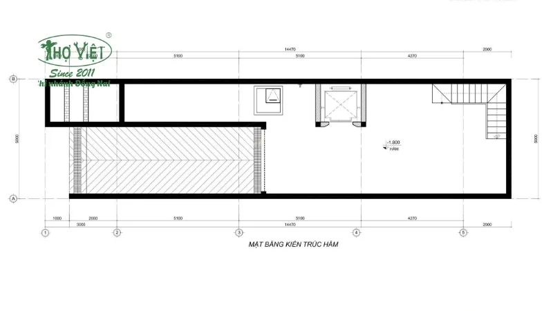
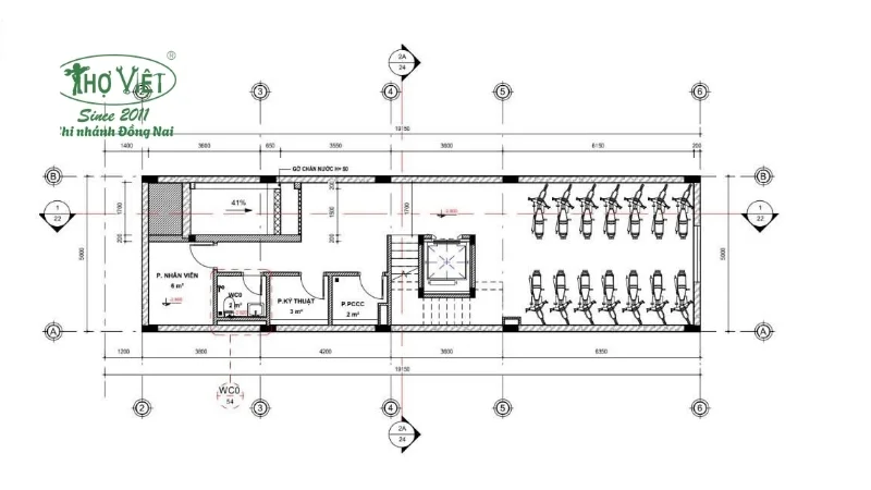
Bản vẽ phổ biến cho tầng hầm nhà phố
Anh/Chị có thể tham khảo một số bản vẽ tầng hầm nhà phố phổ biến để hình dung rõ hơn cách bố trí không gian, lối xuống hầm, khu vực để xe và hệ thống kỹ thuật bên trong:










Việc nắm rõ quy định và phương án thiết kế tầng hầm sẽ giúp Anh/Chị chủ động hơn khi chuẩn bị xây dựng, đồng thời hạn chế phát sinh chi phí trong quá trình thi công. Nếu cần tư vấn bản vẽ, giải pháp kết cấu hoặc báo giá phù hợp, Anh/Chị có thể liên hệ Thợ Đồng Nai để được hỗ trợ cụ thể.
