Xây nhà 3 tấm hết bao nhiêu chi phí, có đắt không và cần chuẩn bị gì là thắc mắc của nhiều gia đình hiện nay. Chi phí xây nhà 3 tấm phụ thuộc vào diện tích, thiết kế và vật liệu xây dựng. Bài viết của Thợ Đồng Nai sẽ giúp Anh/Chị hiểu rõ cách tính chi phí và những bước chuẩn bị cần thiết để xây nhà 3 tấm tiết kiệm và hiệu quả.

Nhà 3 tấm là gì?
Nhà 3 tấm (hay còn gọi là nhà 3 tầng) là loại nhà có kết cấu gồm 3 tầng riêng biệt, xây chồng lên nhau trên cùng một diện tích đất. Mỗi tầng thường được bố trí công năng khác nhau như phòng khách, phòng bếp, phòng ngủ hoặc phòng thờ tùy theo nhu cầu sử dụng của gia đình. Đây là kiểu nhà phổ biến ở đô thị vì giúp tối ưu diện tích xây dựng và tăng không gian sinh hoạt.
Chi phí để xây dựng nhà 3 tấm là bao nhiêu?
Chi phí xây nhà 3 tấm (3 tầng) hiện nay thường dao động khoảng 5.000.000 – 8.000.000 VNĐ/m2 tùy theo vật liệu, thiết kế và mức độ hoàn thiện. Với nhà diện tích phổ biến, tổng chi phí có thể rơi vào khoảng 1,5 – 3 tỷ đồng hoặc hơn nếu làm trọn gói cao cấp.

Đây chỉ là mức giá tham khảo, chi phí thực tế còn phụ thuộc vào diện tích đất, phong cách xây dựng và điều kiện thi công. Để biết chi tiết và báo giá chính xác, vui lòng liên hệ Thợ Đồng Nai để được tư vấn cụ thể.
#Tham khảo: Sửa chữa nhà trọn gói
Cần chuẩn bị những gì trước khi xây nhà 3 tấm
Trước khi xây nhà 3 tấm, việc chuẩn bị kỹ lưỡng là yếu tố quan trọng giúp công trình thi công thuận lợi, hạn chế phát sinh chi phí và đảm bảo chất lượng. Việc nắm rõ từng hạng mục cần chuẩn bị sẽ giúp Anh/Chị chủ động hơn trong quá trình xây dựng.
Tài chính xây dựng
Tài chính là yếu tố quan trọng hàng đầu khi xây nhà 3 tấm, bao gồm chi phí phần thô, chi phí hoàn thiện, nội thất và khoản dự phòng phát sinh trong quá trình thi công. Thông thường, chủ nhà nên chuẩn bị dư thêm khoảng 10–20% tổng ngân sách để xử lý các tình huống phát sinh như thay đổi vật liệu, điều chỉnh thiết kế hoặc biến động giá cả. Việc dự trù tài chính rõ ràng ngay từ đầu sẽ giúp kiểm soát chi phí hiệu quả và tránh gián đoạn thi công.
Bản vẽ thiết kế nhà
Bản vẽ thiết kế là bước không thể thiếu, đóng vai trò định hình toàn bộ ngôi nhà từ kiến trúc, kết cấu đến công năng sử dụng. Một bộ hồ sơ thiết kế đầy đủ thường bao gồm bản vẽ kiến trúc, bản vẽ kết cấu, điện nước và phối cảnh 3D. Việc có thiết kế chi tiết giúp hạn chế sai sót khi thi công, tối ưu diện tích sử dụng và đảm bảo tính thẩm mỹ lâu dài cho công trình.

Giấy phép xây dựng
Giấy phép xây dựng là thủ tục pháp lý bắt buộc trước khi khởi công. Chủ nhà cần chuẩn bị hồ sơ gồm giấy tờ quyền sử dụng đất, bản vẽ thiết kế và các giấy tờ liên quan để nộp lên cơ quan có thẩm quyền. Việc xin phép đúng quy định không chỉ giúp công trình hợp pháp mà còn tránh các rủi ro như bị phạt hành chính hoặc buộc dừng thi công giữa chừng.
Đơn vị thi công uy tín
Lựa chọn đơn vị thi công uy tín quyết định trực tiếp đến chất lượng và tiến độ công trình. Nhà thầu chuyên nghiệp sẽ giúp bóc tách khối lượng chính xác, báo giá minh bạch và đảm bảo kỹ thuật thi công đúng tiêu chuẩn. Ngoài ra, họ còn hỗ trợ tư vấn vật liệu phù hợp, giúp tối ưu chi phí và hạn chế tối đa phát sinh trong quá trình xây dựng.
Một số ý tưởng về mẫu nhà 3 tấm
Dưới đây là một số ý tưởng về mẫu nhà 3 tấm phổ biến và được ưa chuộng hiện nay:
Nhà 3 tấm hiện đại
Đây là mẫu nhà được thiết kế theo phong cách tối giản, sử dụng các đường nét thẳng, màu sắc trung tính và nhiều mảng kính để lấy ánh sáng tự nhiên. Kiểu nhà này phù hợp với đô thị, giúp không gian thông thoáng và sang trọng.
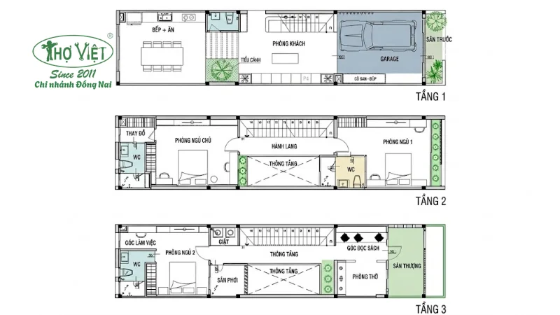
Nhà 3 tấm có gara ô tô
Mẫu nhà này thường bố trí tầng trệt làm gara kết hợp phòng khách hoặc bếp, phía trên là các tầng sinh hoạt. Thiết kế này phù hợp với gia đình có ô tô, giúp tối ưu diện tích sử dụng trên đất hẹp.

Nhà 3 tấm có sân thượng
Sân thượng được tận dụng làm khu vực thư giãn, trồng cây hoặc làm không gian BBQ ngoài trời. Đây là lựa chọn lý tưởng cho những gia đình muốn có thêm không gian xanh và thoáng đãng giữa đô thị.
Nhà 3 tấm lệch tầng
Thiết kế lệch tầng tạo cảm giác không gian rộng hơn, tăng sự thông thoáng và tính thẩm mỹ độc đáo. Kiểu nhà này thường được sử dụng để tối ưu ánh sáng và gió tự nhiên trong nhà.

Mẫu nhà 3 tấm đẹp dành cho năm [nam]
Các mẫu nhà 3 tấm đẹp được thiết kế ngày càng đa dạng, đáp ứng cả nhu cầu thẩm mỹ lẫn công năng sử dụng của nhiều gia đình. Anh/Chị mời tham khảo một số ý tưởng thiết kế nhà 3 tấm hiện đại, tiện nghi và phù hợp xu hướng xây dựng mới hiện nay.










Trên đây là một số mẫu nhà 3 tấm đẹp, hiện đại và phù hợp xu hướng xây dựng hiện nay mà Anh/Chị có thể tham khảo. Nếu Anh/Chị cần tư vấn thiết kế hoặc báo giá thi công chi tiết, vui lòng liên hệ Thợ Đồng Nai để được hỗ trợ kịp thời và chính xác.
