Mặt bằng móng cọc là phần quan trọng trong thiết kế nền móng, ảnh hưởng trực tiếp đến khả năng chịu lực và độ ổn định của công trình. Thợ Đồng Nai giới thiệu những mẫu mặt bằng móng cọc được nhiều gia đình lựa chọn hiện nay, phù hợp với từng loại nhà ở và điều kiện nền đất khác nhau.
Mặt bằng móng cọc là gì?
Mặt bằng móng cọc là bản thể hiện vị trí bố trí các cọc, đài cọc và hệ giằng móng trên mặt bằng công trình theo đúng thiết kế kết cấu. Thông qua bản vẽ này, anh/chị có thể hình dung được cách các cọc được phân bổ dưới từng chân cột, khoảng cách giữa các cọc và sự liên kết giữa các phần móng với nhau.
![Top các mẫu mặt bằng móng cọc phù hợp dành cho năm [nam] 1 Mặt bằng móng cọc là gì?](https://thodongnai.vn/wp-content/uploads/2026/04/mat-bang.webp)
Trong thi công thực tế, mặt bằng móng cọc giúp đội ngũ kỹ thuật xác định chính xác vị trí ép cọc hoặc khoan cọc, tránh sai lệch khi triển khai ngoài công trường. Đây cũng là cơ sở để tính toán tải trọng, kiểm soát vật liệu và bảo đảm toàn bộ phần móng làm việc đồng đều, ổn định lâu dài cho công trình.
#Tham khảo: Sửa chữa nhà trọn gói
Tầm quan trọng của mặt bằng móng cọc trong xây dựng
Mặt bằng móng cọc là nền tảng quan trọng quyết định sự vững chắc của toàn bộ công trình. Chuẩn bị mặt bằng đúng kỹ thuật không chỉ giúp móng cọc chịu lực tốt mà còn đảm bảo thi công chính xác, tiết kiệm chi phí và kéo dài tuổi thọ công trình. Dưới đây là những lý do chi tiết vì sao mặt bằng móng cọc lại quan trọng:
Đảm bảo ổn định và an toàn cho công trình
Mặt bằng móng cọc là phần nền trực tiếp chịu toàn bộ tải trọng từ công trình. Nếu mặt bằng không bằng phẳng hoặc chưa được xử lý đúng kỹ thuật, cọc có thể bị lún lệch, nghiêng hoặc hư hỏng kết cấu. Hậu quả là công trình dễ xuất hiện hiện tượng nứt tường, sụt lún nền hoặc mất cân bằng kết cấu, gây nguy hiểm cho người sử dụng và làm tăng chi phí sửa chữa về sau.
Tối ưu khả năng chịu lực của móng cọc
Một mặt bằng móng cọc chuẩn kỹ thuật giúp các cọc ép hoặc cọc khoan nhồi phân bố lực đồng đều. Khi cọc được bố trí đúng vị trí, đúng độ sâu và khoảng cách tiêu chuẩn, tải trọng từ công trình được truyền xuống đất nền hiệu quả, tránh tình trạng quá tải cục bộ hay lún không đều. Điều này đặc biệt quan trọng đối với các công trình nhiều tầng hoặc chịu tải lớn.
Thi công chính xác và tiết kiệm chi phí
Mặt bằng chuẩn giúp định vị cọc nhanh chóng và chính xác, giảm thiểu sai số trong quá trình thi công. Nhờ đó, các bước đóng cọc, khoan cọc hay lắp đặt cốt thép diễn ra dễ dàng hơn. Việc này giúp hạn chế phải đào lại, sửa chữa, tránh lãng phí vật liệu, nhân công và thời gian, đồng thời giảm rủi ro phát sinh chi phí ngoài dự kiến.
![Top các mẫu mặt bằng móng cọc phù hợp dành cho năm [nam] 2 Tầm quan trọng của mặt bằng móng cọc trong xây dựng](https://thodongnai.vn/wp-content/uploads/2026/04/tam-quan-trong.webp)
Hỗ trợ kiểm soát chất lượng công trình
Mặt bằng móng cọc là cơ sở để các kỹ sư, giám sát viên kiểm tra, giám sát các bước thi công tiếp theo như đổ bê tông hay lắp cốt thép. Khi nền móng đạt chuẩn, việc kiểm soát chất lượng từng hạng mục trở nên dễ dàng hơn, đảm bảo công trình đúng thiết kế, tiêu chuẩn kỹ thuật và pháp lý.
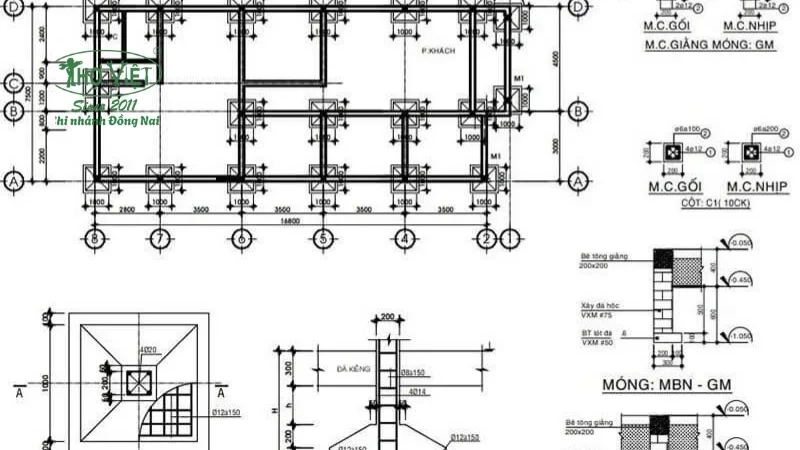
Top các mẫu mặt bằng móng cọc
Để xây dựng công trình vững chắc, việc lựa chọn mặt bằng móng cọc phù hợp là rất quan trọng. Anh/chị có thể tham khảo ngay các mẫu mặt bằng móng cọc phổ biến, được thiết kế chuẩn kỹ thuật, giúp công trình chịu lực tốt, thi công dễ dàng và tiết kiệm chi phí. Những mẫu này phù hợp với nhiều loại công trình, từ nhà phố, biệt thự đến các dự án lớn:
![Top các mẫu mặt bằng móng cọc phù hợp dành cho năm [nam] 3 mẫu mặt bằng móng cọc](https://thodongnai.vn/wp-content/uploads/2026/04/mau-mat-bang-mong-coc-9.webp)
![Top các mẫu mặt bằng móng cọc phù hợp dành cho năm [nam] 4 mẫu mặt bằng móng cọc](https://thodongnai.vn/wp-content/uploads/2026/04/mau-mat-bang-mong-coc.webp)
![Top các mẫu mặt bằng móng cọc phù hợp dành cho năm [nam] 5 mẫu mặt bằng móng cọc](https://thodongnai.vn/wp-content/uploads/2026/04/mau-mat-bang-mong-coc-3.webp)
![Top các mẫu mặt bằng móng cọc phù hợp dành cho năm [nam] 6 mẫu mặt bằng móng cọc](https://thodongnai.vn/wp-content/uploads/2026/04/mau-mat-bang-mong-coc-2.webp)
![Top các mẫu mặt bằng móng cọc phù hợp dành cho năm [nam] 7 mẫu mặt bằng móng cọc](https://thodongnai.vn/wp-content/uploads/2026/04/mau-mat-bang-mong-coc-4.webp)
![Top các mẫu mặt bằng móng cọc phù hợp dành cho năm [nam] 8 mẫu mặt bằng móng cọc](https://thodongnai.vn/wp-content/uploads/2026/04/mau-mat-bang-mong-coc-5.webp)
![Top các mẫu mặt bằng móng cọc phù hợp dành cho năm [nam] 9 mẫu mặt bằng móng cọc](https://thodongnai.vn/wp-content/uploads/2026/04/mau-mat-bang-mong-coc-6.webp)
![Top các mẫu mặt bằng móng cọc phù hợp dành cho năm [nam] 10 mẫu mặt bằng móng cọc](https://thodongnai.vn/wp-content/uploads/2026/04/mau-mat-bang-mong-coc-1.webp)
![Top các mẫu mặt bằng móng cọc phù hợp dành cho năm [nam] 11 mẫu mặt bằng móng cọc](https://thodongnai.vn/wp-content/uploads/2026/04/mau-mat-bang-mong-coc-7.webp)
![Top các mẫu mặt bằng móng cọc phù hợp dành cho năm [nam] 12 mẫu mặt bằng móng cọc](https://thodongnai.vn/wp-content/uploads/2026/04/mau-mat-bang-mong-coc-8.webp)
Việc lựa chọn và thi công mặt bằng móng cọc chuẩn kỹ thuật sẽ giúp công trình của anh/chị vững chắc, an toàn và bền lâu theo thời gian. Nếu anh/chị có nhu cầu tư vấn, thiết kế hoặc thi công mặt bằng móng cọc, vui lòng liên hệ ngay với Thợ Đồng Nai để được hỗ trợ kịp thời và chuyên nghiệp.
