Việc tính toán chiều cao từng tầng nhà là bước quan trọng trong thiết kế và xây dựng, giúp ngôi nhà vừa cân đối, thoáng đãng, vừa đảm bảo tiện nghi và an toàn kết cấu. Thợ Đồng Nai sẽ hướng dẫn chi tiết cách tính tầng nhà hiệu quả, giúp Anh/Chị tối ưu không gian, ánh sáng, thông gió và tiết kiệm chi phí xây dựng.

Vì sao, cần phải tính tầng nhà cho chuẩn xác?
Khi xây dựng nhà phố, nhà ở riêng lẻ hoặc chung cư, việc tính toán chiều cao từng tầng chuẩn xác ngay từ đầu sẽ giúp ngôi nhà không chỉ cân đối, thông thoáng mà còn đảm bảo tiện nghi, an toàn kết cấu và tiết kiệm chi phí. Dưới đây là những lưu ý quan trọng Anh/Chị nên cân nhắc:
Xác định chiều cao từng tầng phù hợp công năng
Trước hết, Anh/Chị cần xác định chức năng của từng phòng để phân bổ chiều cao hợp lý. Phòng khách, phòng ngủ cần chiều cao thông thủy tối thiểu khoảng 2,6 – 2,7 m; phòng bếp, phòng ăn, vệ sinh khoảng 2,3 – 2,4 m; tầng hầm hoặc kho khoảng 2,0 – 2,2 m. Việc phân bổ chiều cao phù hợp giúp không gian thoáng, tránh cảm giác chật chội và tối ưu ánh sáng, thông gió tự nhiên.
Đảm bảo kết cấu vững chắc và an toàn công trình
Chiều cao tầng ảnh hưởng trực tiếp đến thiết kế cột, dầm, sàn và tổng tải trọng ngôi nhà. Khi tính sai, có thể gây sàn võng, tường nứt hoặc áp lực lên móng không hợp lý. Anh/Chị nên phối hợp với kỹ sư để xác định chiều cao tầng hợp lý với nền đất và vật liệu, đảm bảo công trình bền vững lâu dài.
Tuân thủ quy chuẩn pháp lý và quy hoạch
Mỗi loại công trình có quy định riêng về chiều cao tối thiểu: nhà phố, nhà ở riêng lẻ hay chung cư đều phải tuân thủ để xin phép xây dựng thuận lợi. Bố trí tầng đúng quy chuẩn giúp tránh vi phạm lộ giới, mật độ xây dựng và đảm bảo tổng thể ngôi nhà cân đối, hợp lý.
#Tham khảo: Dịch vụ sửa nhà

Quy định về chiều cao tầng nhà
Chiều cao tầng nhà ảnh hưởng trực tiếp đến không gian sống, ánh sáng, thông gió, kết cấu công trình và sự tiện nghi trong sử dụng. Tùy thuộc vào loại công trình: nhà phố, nhà ở riêng lẻ hay chung cư, các tiêu chuẩn và quy định sẽ có khác nhau, nhưng đều nhằm đảm bảo an toàn và thoải mái cho người sử dụng.
Nhà phố và nhà ở riêng lẻ
Theo TCVN 9411:2012 và Tiểu mục 5.9 Mục 5 TCVN 13967:2024, chiều cao thông thủy và chiều cao tầng nhà phố và nhà ở riêng lẻ được quy định như sau:
- Phòng khách, phòng ngủ: chiều cao thông thủy không nhỏ hơn 2,6 – 2,7 m.
- Phòng bếp, phòng ăn, vệ sinh, phòng giặt là, kho: chiều cao thông thủy không nhỏ hơn 2,3 – 2,4 m.
- Tầng hầm, nửa/bán hầm, kho: chiều cao thông thủy không nhỏ hơn 2,0 – 2,2 m.
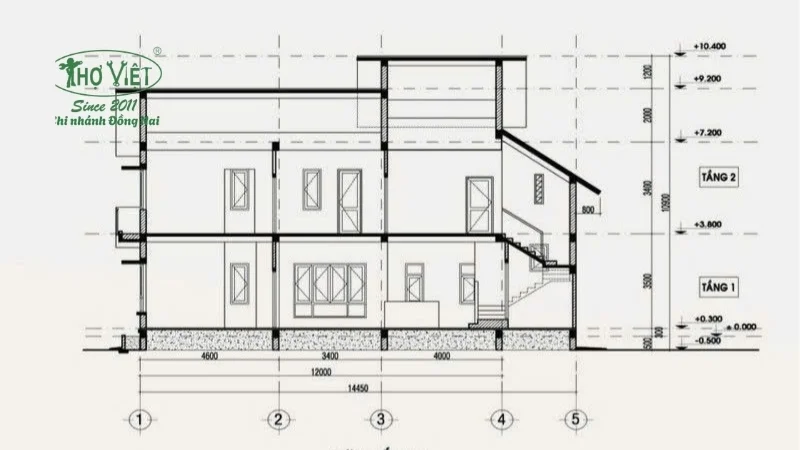
Về chiều cao tầng, tầng 1 (trệt) thường cao từ 3,3 – 3,8 m để đảm bảo thông thoáng và thuận tiện sinh hoạt. Các tầng lầu cao từ 3 – 3,3 m. Nếu bố trí tầng lửng, chiều cao tầng lửng thường từ 2,2 – 2,5 m, và tổng chiều cao từ sàn trệt lên sàn lầu 1 tối đa khoảng 4 – 4,2 m, tùy theo lộ giới và quy hoạch địa phương.

Về lộ giới tham khảo tại các đô thị như TP.HCM, nếu lộ giới < 6 m, nhà chỉ được xây tối đa 3 tầng và thường không làm tầng lửng; lộ giới từ 6–12 m, có thể xây tối đa 3–4 tầng và bố trí lửng; lộ giới ≥ 12 m, tầng trệt có thể cao đến 3,8 m hoặc hơn tùy quy hoạch.
Nhà chung cư
Theo Tiểu mục 2.2.10, Mục 2, QCVN 04:2021/BXD, chiều cao thông thủy trong nhà chung cư được quy định như sau:
- Phòng ở: không nhỏ hơn 2,6 m.
- Phòng bếp và phòng vệ sinh: không nhỏ hơn 2,3 m.
- Tầng hầm, tầng nửa hầm, tầng kỹ thuật: không nhỏ hơn 2,0 m.
- Không gian bên trong mái dốc sử dụng làm phòng ngủ hoặc phòng sinh hoạt: 1/2 diện tích phòng không nhỏ hơn 2,1 m.
- Các phòng và khu vực khác: chiều cao thông thủy lấy theo nhiệm vụ thiết kế hoặc tiêu chuẩn áp dụng.
Khi xây dựng nhà chung cư, cần đảm bảo chiều cao thông thủy theo loại phòng để an toàn, tiện nghi và phù hợp với tiêu chuẩn kỹ thuật hiện hành.
Lưu ý chung
Chiều cao tầng phải tuân theo giấy phép xây dựng và quy hoạch chi tiết tại từng địa phương. Nên ưu tiên chiều cao thông thoáng cho tầng thấp (tầng trệt) và chiều cao vừa phải cho các tầng trên, giúp tối ưu không gian, tiết kiệm năng lượng và tạo sự cân đối tổng thể cho công trình.
Cách tính tầng nhà hiệu quả từng centimet
Khi xây dựng nhà phố hay nhà ở riêng lẻ, việc tính toán chiều cao từng tầng một cách chính xác không chỉ giúp tận dụng không gian mà còn đảm bảo kết cấu bền vững, ánh sáng và thông gió tốt. Dưới đây là hướng dẫn áp dụng cho các trường hợp phổ biến:
Nhà mặt tiền
Với nhà mặt tiền, thường có lợi thế về không gian và ánh sáng, nên tính chiều cao tầng theo các bước sau:
- Xác định chiều cao thông thủy từng phòng:
- Phòng khách, phòng ngủ: ≥ 2,7 m.
- Phòng bếp, vệ sinh, phòng ăn: ≥ 2,3 – 2,4 m.
- Tầng hầm (nếu có): ≥ 2,2 m.
- Tính chiều cao tầng tổng thể:
- Tầng 1: thường 3,3 – 3,8 m để không gian thông thoáng, đủ cho trần thạch cao, đèn và hệ thống kỹ thuật.
- Tầng lầu: 3 – 3,3 m.
- Tầng lửng (nếu bố trí): cao 2,2 – 2,5 m, tổng chiều cao từ sàn trệt lên sàn lầu 1 tối đa 4 – 4,2 m.
- Kiểm tra lộ giới và quy hoạch:
- Lộ giới < 6 m: tối đa 3 tầng, hạn chế làm tầng lửng.
- Lộ giới 6–12 m: tối đa 3–4 tầng, có thể bố trí lửng.
- Lộ giới ≥ 12 m: tầng trệt có thể cao hơn 3,8 m, tổng thể nhà có thể xây cao hơn tùy quy hoạch.
Nhà mặt tiền thường tận dụng được ánh sáng tự nhiên tốt, nên chiều cao tầng hợp lý vừa tạo cảm giác thông thoáng, vừa cân đối tỷ lệ mặt đứng của công trình.

Nhà trong hẻm
Với nhà trong hẻm, không gian hạn chế và ánh sáng tự nhiên thường kém hơn, vì vậy cần tính toán từng centimet để đảm bảo tiện nghi và sự thông thoáng:
- Ưu tiên chiều cao thông thủy các phòng chính:
- Phòng khách và phòng ngủ: ≥ 2,7 m, giúp không gian không bị chật và đảm bảo lưu thông không khí.
- Phòng bếp, vệ sinh, kho: ≥ 2,3 m.
- Điều chỉnh chiều cao tầng theo chiều sâu hẻm:
- Tầng 1: 3,3 – 3,5 m là hợp lý để lấy sáng từ mặt tiền và giếng trời.
- Tầng lầu: 3 m là đủ, không nên làm quá cao gây khó thi công hoặc làm áp lực kết cấu.
- Tầng lửng: 2,2 – 2,5 m, nếu bố trí, nên tính toán sao cho ánh sáng vẫn chiếu xuống tầng trệt.
- Tối ưu hóa không gian và thông gió:
- Bố trí giếng trời, cửa sổ hông hoặc ban công nhỏ để tận dụng ánh sáng và thông gió.
- Chiều cao các tầng phải cân đối, tránh làm tầng trệt quá thấp hoặc tầng trên quá cao, vừa đảm bảo kỹ thuật, vừa tiết kiệm chi phí xây dựng.
Tính chiều cao tầng nhà chính xác giúp công trình bền vững, tiện nghi và tuân thủ các quy chuẩn kỹ thuật. Khi cần, Anh/Chị có thể tham khảo thêm Thợ Đồng Nai để được tư vấn chiều cao tối ưu, phù hợp với từng loại nhà và từng vị trí xây dựng.
