Bản vẽ nhà cấp 4 gác lửng 4x13m được ưa chuộng nhờ tận dụng tối đa diện tích đất hẹp, vừa rộng rãi vừa tiết kiệm chi phí. Thợ Đồng Nai cung cấp bản vẽ chi tiết và tư vấn thiết kế, giúp Anh/Chị chọn phương án phù hợp với nhu cầu, phong cách và ngân sách.

Ưu điểm của nhà cấp 4 gác lửng 4x13m
Nhà cấp 4 gác lửng 4x13m ngày càng được nhiều gia đình lựa chọn nhờ sự linh hoạt về diện tích, chi phí và công năng. Dưới đây là những ưu điểm nổi bật của kiểu nhà này:
Tối ưu diện tích đất hẹp, mở rộng không gian sống
Nhờ gác lửng, ngôi nhà có thể tận dụng chiều cao để tăng diện tích sử dụng mà không làm tăng chiều rộng hay chiều dài, giúp các phòng sinh hoạt như phòng khách, bếp, phòng ngủ và phòng làm việc được bố trí hợp lý. Điều này đặc biệt phù hợp với lô đất 4x13m, nơi diện tích mặt bằng hạn chế nhưng vẫn muốn đảm bảo không gian sống tiện nghi.
Chi phí xây dựng hợp lý, tiết kiệm ngân sách
So với nhà 2 tầng hoặc 3 tầng, nhà cấp 4 gác lửng có kết cấu đơn giản hơn, sử dụng vật liệu ít hơn và thời gian thi công nhanh chóng. Nhờ vậy, chi phí xây dựng tổng thể được tiết kiệm, trong khi vẫn đảm bảo kết cấu bền vững, công năng đầy đủ và thẩm mỹ đẹp mắt.
Công năng linh hoạt, dễ bố trí các phòng chức năng
Gác lửng có thể linh hoạt bố trí thành phòng ngủ, phòng làm việc, phòng đọc sách hoặc phòng sinh hoạt chung. Việc này vừa tăng diện tích sử dụng, vừa giữ tầng trệt thoáng đãng, thuận tiện cho sinh hoạt hàng ngày và sinh hoạt gia đình, đồng thời dễ dàng điều chỉnh theo nhu cầu trong tương lai.
Phối cảnh hiện đại, thông thoáng và tiện nghi
Nhà cấp 4 gác lửng dễ thiết kế theo phong cách hiện đại, kết hợp giếng trời, cửa sổ lớn và ban công nhỏ để tối ưu ánh sáng tự nhiên và lưu thông gió. Không gian sống nhờ đó luôn thoáng đãng, mát mẻ, tạo cảm giác rộng rãi hơn so với diện tích thực, đồng thời tăng tính thẩm mỹ cho tổng thể ngôi nhà.

Các yếu tố cần lưu ý khi thiết kế bản vẽ nhà cấp 4 gác lửng 4x13m
Khi thiết kế bản vẽ nhà cấp 4 gác lửng 4x13m, Anh/Chị cần lưu ý nhiều yếu tố để ngôi nhà vừa đẹp, tiện nghi vừa bền vững và tiết kiệm chi phí. Việc tính toán kỹ từ đầu giúp tránh phát sinh chi phí, đảm bảo kết cấu chắc chắn và tối ưu công năng cho cả gia đình.
Xác định chức năng các phòng và bố trí công năng hợp lý
Trước khi vẽ bản thiết kế, Anh/Chị nên xác định rõ nhu cầu sử dụng của gia đình, bao gồm số phòng ngủ, phòng khách, bếp, nhà vệ sinh và khu vực sinh hoạt chung. Việc bố trí công năng hợp lý sẽ giúp ngôi nhà thoáng đãng, dễ đi lại và gác lửng không làm tầng trệt bị chật hẹp, đồng thời đảm bảo mọi thành viên đều thuận tiện khi sinh hoạt.
Tính toán chiều cao gác lửng và kết cấu chịu lực
Chiều cao gác lửng thường dao động từ 2,2–2,5m, đủ để Anh/Chị di chuyển thoải mái và bố trí nội thất. Khi thiết kế, cần tính toán kỹ phần kết cấu chịu lực gồm cột, dầm, sàn gác để tránh quá tải. Nếu gác lửng sử dụng cho phòng ngủ hoặc phòng làm việc, việc bố trí dầm, sàn chắc chắn sẽ giúp ngôi nhà an toàn lâu dài, hạn chế hiện tượng sàn võng hay nứt tường.
Thiết kế thông gió và lấy sáng
Nhà diện tích hẹp dễ gặp tình trạng bí bách nếu không bố trí thông gió và ánh sáng hợp lý. Anh/Chị nên thêm cửa sổ, giếng trời, ban công hoặc các ô thoáng ở gác lửng để không khí và ánh sáng lưu thông tốt. Việc này giúp gác lửng mát mẻ, tầng trệt thoáng đãng và hạn chế chi phí điện năng nhờ tận dụng ánh sáng tự nhiên.
Chọn vật liệu phù hợp và tiết kiệm chi phí
Vật liệu ảnh hưởng trực tiếp đến chi phí, độ bền và thẩm mỹ. Khi lập bản vẽ, Anh/Chị nên cân nhắc sử dụng vật liệu vừa bền, vừa phù hợp ngân sách. Ví dụ, lựa chọn gạch, bê tông và thép đạt chuẩn cho kết cấu chịu lực, sơn bả và trần thạch cao chất lượng để hoàn thiện gác lửng. Việc này giúp công trình đẹp, an toàn và giảm rủi ro phải sửa chữa sau này.
#Tham khảo: Sửa nhà trọn gói

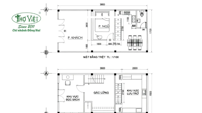
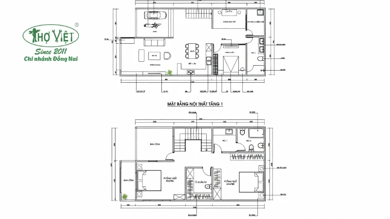
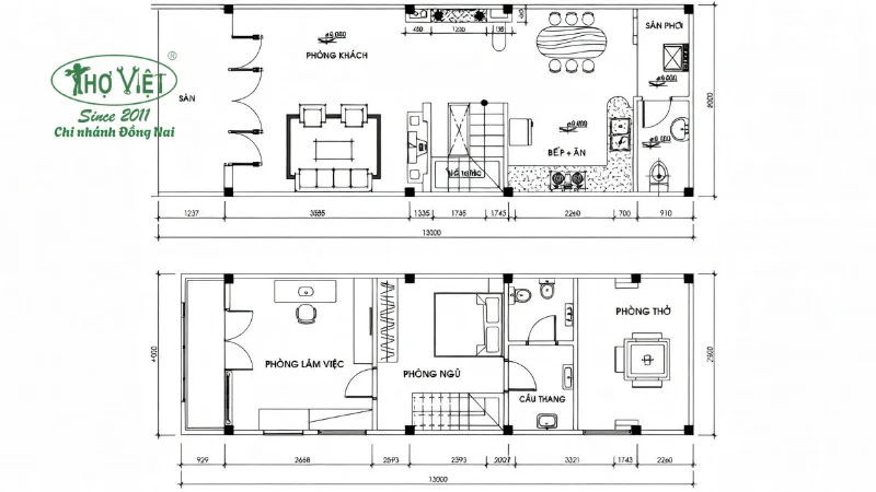
Gợi ý bản vẽ nhà cấp 4 gác lửng 4x13m
Để Anh/Chị dễ hình dung và lên ý tưởng, dưới đây là một số bản vẽ nhà cấp 4 gác lửng 4x13m chi tiết, thiết kế hợp lý và đúng kỹ thuật.










Những gợi ý bản vẽ nhà cấp 4 gác lửng 4x13m trên sẽ giúp Anh/Chị dễ dàng tham khảo, lên ý tưởng thiết kế và sắp xếp công năng hợp lý. Nếu Anh/Chị cần tư vấn chi tiết hoặc thi công trọn gói, Thợ Đồng Nai luôn sẵn sàng hỗ trợ, đảm bảo công trình chất lượng và đúng tiến độ.
