Mặt bằng nhà hàng quyết định tối ưu không gian và công năng. Thợ Đồng Nai cung cấp các bản vẽ mặt bằng nhà hàng, giúp Anh/Chị dễ dàng bố trí hợp lý, phù hợp phong cách và ngân sách.

Các mẫu bản vẽ mặt bằng nhà hàng phổ biến
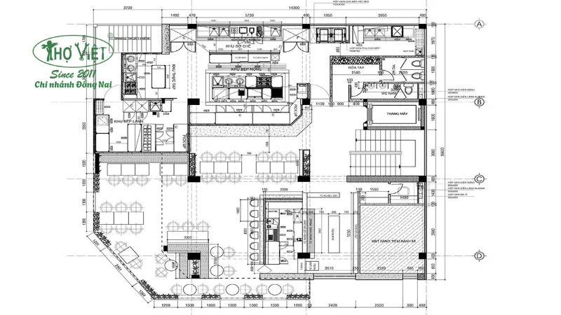
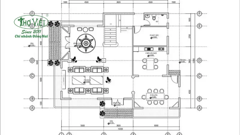
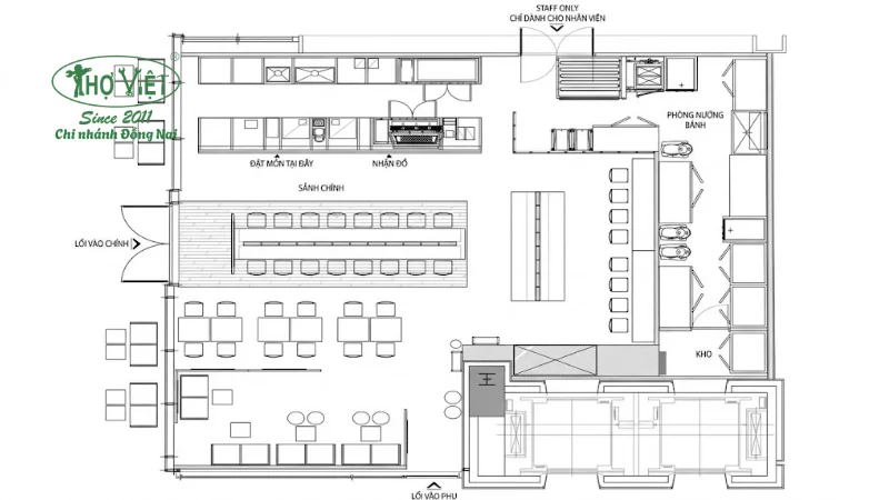
Dưới đây là một số mẫu bản vẽ mặt bằng nhà hàng phổ biến, giúp Anh/Chị tham khảo ý tưởng bố trí không gian, công năng và phong cách thiết kế phù hợp:



Gợi ý bản vẽ mặt bằng nhà hàng đang được ưa chuộng
Tham khảo các bản vẽ mặt bằng nhà hàng đang được ưa chuộng sẽ giúp chủ đầu tư và kiến trúc sư hình dung bố trí không gian hợp lý, đảm bảo vận hành thuận tiện và nâng cao trải nghiệm khách hàng. Thợ Đồng Nai cung cấp tư vấn thiết kế, giúp Anh/Chị lựa chọn phương án phù hợp với diện tích, phong cách và ngân sách:










#Tham khảo: Sửa nhà giá rẻ
Trên đây là các bản vẽ mặt bằng nhà hàng đang được ưa chuộng, giúp Anh/Chị tham khảo bố trí công năng, lối đi và không gian phục vụ khách hợp lý. Nếu cần tư vấn thiết kế hoặc thi công, Anh/Chị có thể liên hệ Thợ Đồng Nai, đơn vị uy tín, giàu kinh nghiệm, đảm bảo chất lượng và tiến độ công trình.
